Order a project in PDF format 299 € Order a project in PDF and DWG format 449 €

You can have project documentation in one of five languages: EN, DE, FR, ES, IT

Delivery time :
3 days
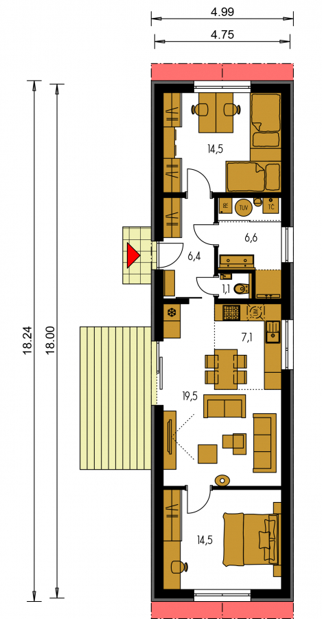
Living spaces 3
Usable (floor) area 69,7m2
Living area 48,5m2
Number of persons 3-4

MINI 2 is a house in the smaller size category, for narrow plots. Suitable for single-storey surrounding buildings. The internal space in this house will meet the housing needs for a 3-4 member family. The living room and kitchen form a single large space. The barrier-free design is appropriate for persons with reduced mobility. Suitable for flat and slightly sloped terrain. The house has a fireplace which provides heat and serves an irreplaceable aesthetic function. Thanks to the room on the ground floor, you can avoid the need to take the stairs.

Basic design
 
View - MINI 2
Tech. parameters
Number of persons: 3-4
Living spaces: 3
Built-up area: 85,5m2
Enclosed space: 470m3
Usable (floor) area: 69,7m2
Living area: 48,5m2
Ridge height ±0,0: 5m
Orientation of the main entrance: JV, JZ
Ground floor usable (floor) area: 69,7m2
Roof pitch: 40 °

similar house projects

Beautiful semi-detached house project.

Beautiful semi-detached house project.

NOVA 222 is a house in the larger size category, for wider plots. Living area separate from bedrooms. Suitable for two-storey surrounding buildings The internal space in this house will meet the ho...
Villa with double garage.

Villa with double garage.

NOVA 223 is a house in the larger size category, for medium width plots. Living area separate from bedrooms. Suitable for two-storey surrounding buildings The internal space in this house will meet...
Multi-storey 4-room house.

Multi-storey 4-room house.

PORTO 20 is a house in the medium size category, for medium width plots. Suitable for two-storey surrounding buildings The internal space in this house will meet the housing needs for a 10 member f...
House suitable for row construction.

House suitable for row construction.

PORTO 21 is a house in the medium size category, for medium width plots. Living area separate from bedrooms. Suitable for two-storey surrounding buildings The internal space in this house will meet...
Modern house also suitable for row construction.

Modern house also suitable for row construction.

PORTO 22 is a house in the medium size category, for medium width plots. Suitable for two-storey surrounding buildings The internal space in this house will meet the housing needs for a 10 member f...
Classic house with half-hip roof.

Classic house with half-hip roof.

PORTO 24 is a house in the larger size category, for medium width plots. Suitable for two-storey surrounding buildings The internal space in this house will meet the housing needs for a 10 member f...
Large multi-story L-shaped house.

Large multi-story L-shaped house.

PORTO 29 is a house in the larger size category, for medium width plots. Living area separate from bedrooms. Suitable for two-storey surrounding buildings The internal space in this house will meet...
Multi-storey house for a narrow plot.

Multi-storey house for a narrow plot.

PREMIER 56 is a house in the medium size category, for narrow plots. Living area separate from bedrooms. Suitable for two-storey surrounding buildings The internal space in this house will meet the...
Beautiful house for a large family.

Beautiful house for a large family.

PREMIER 58 is a house in the larger size category, for medium width plots. Living area separate from bedrooms. Suitable for two-storey surrounding buildings The internal space in this house will me...
0

About cookies on this site

We use cookies to collect and analyse information on site performance and usage, to provide social media features and to enhance and customise content and advertisements. Learn more