You can have project documentation in one of five languages: EN, DE, FR, ES, IT
| Living spaces | 2 |
| Usable (floor) area | 48,6m2 |
| Living area | 30,4m2 |
| Number of persons | 2-3 |
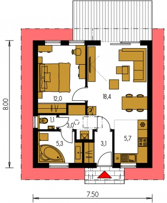
BUNGALOW 219 is a house in the smaller size category, for narrow plots. Suitable for single-storey surrounding buildings. The internal space in this house will meet the housing needs for a 2-3 member family. The living room and kitchen form a single large space. The barrier-free design is appropriate for persons with reduced mobility. Suitable for flat and slightly sloped terrain. The house has a fireplace which provides heat and serves an irreplaceable aesthetic function. Thanks to the room on the ground floor, you can avoid the need to take the stairs. Suitable for row construction thanks to its shape and layout.
| Tech. parameters | |
|---|---|
| Number of persons: | 2-3 |
| Living spaces: | 2 |
| Built-up area: | 60m2 |
| Enclosed space: | 292,4m3 |
| Usable (floor) area: | 48,6m2 |
| Living area: | 30,4m2 |
| Ridge height ±0,0: | 5,27m |
| Orientation of the main entrance: | S, SZ, SV |
| Ground floor usable (floor) area: | 48,6m2 |
| Roof pitch: | 25 ° |
Two-bedroom house on a small plot Bungalow 219 with fireplace is suitable for living also as a holiday cottage or garden house. This project of a house without a garage will meet the requirements of a 2 - 3 member family. The house is wheelchair accessible, which will be appreciated by families with small children and people with reduced mobility.
The layout of the house satisfies the requirements for space and maximum use of the built-up area at the same time. The entrance to the house brings you into the hallway. Its size allows you to place a built-in wardrobe or a hallway set with hangers. It is separated from the rest of the house by a door, whose role is to prevent the penetration of cold air from the surroundings.
The corridor leads directly to the living area of the house, which consists of a kitchen connected to the living room. Like other PRODOM house projects, the Bungalow 219 project thinks about the space's lighting. This is taken care of by sliding doors to the terrace and a window in the kitchen area.
The kitchen area is designed for an L-shaped line, which, even in a small space, will satisfy the expectations of every housewife. All modern appliances, including the fridge, can fit in, leaving plenty of space for food preparation. Space is allocated for a dining table between the unit and the living area. It can accommodate a dining table for four people.
An L-shaped sofa for three people fits in the living room, to which a pouffe or stool can be added. While keeping the room airy, there can also be a TV cabinet or shelves. On cold days, you can enjoy a cosy seating area with the warmth of the built-in fireplace.
From the living room, there is a door leading to the bedroom. In this room, there is space for a built-in wardrobe. In addition to the double bed, it can also accommodate other furniture, such as a chest of drawers. Need a quiet place to work? The room's over-lighting with up to two windows creates the ideal conditions for a small work area. Passionate book lovers will surely love to turn it into a reading corner.
The design of the house on a small plot Bungalow 219 situates the bathroom in close proximity to a separate toilet with a smaller sink. A corner bath can be installed in the bathroom, and a washing machine can also fit. The space reserved for the sink can be used for a sink cabinet.
Additional storage space for a closet for toiletries and cleaning supplies, bathroom textiles and other items is created in the hallway. In addition, you will find here a place for mounting the boiler.
The project of a bungalow without a garage will satisfy the requirements of a family of 2 - 3 members. For parking, there is a reserved space next to the house. A parking space can be built with a roof. This small family house is suitable for realization on flat or slightly sloping land and as a holiday cottage.
If you have a narrow plot of land on which you plan to build a family house, then this family house project is a suitable solution for you. This narrow plot project is designed to maximise limited space while maintaining the functionality of the house. It makes efficient use of space on the plot.
Bungalow type family house projects are among our best-sellers. The advantages of these houses are mainly that you usually have everything on one floor, so it is suitable for families with small children, for the elderly or people who need a barrier-free house project. If you already have a larger or smaller plot of land, you will definitely find a project for you in our offer.
This family house belongs to the category of Modern family houses. But it is up to you whether to use modern materials, various types of façade cladding or modern elements in interiors. Ultimately, the owner will be led to a house in the MODERN category with his/her approach to construction and the use of modern technologies, of which there are many at present.
Small family house projects are in the category of inexpensive family houses which are undemanding in terms of plot size – they may be single or multi-storey. These are typically family houses suited to young families who are looking to resolve their housing needs. They are also popular with older people looking for single-storey, barrier-free family houses. These houses are energy efficient.