You can have project documentation in one of five languages: EN, DE, FR, ES, IT
| Living spaces | 3 |
| Usable (floor) area | 70,7m2 |
| Living area | 44,2m2 |
| Number of persons | 3-4 |
ZEN 2 is a house in the smaller size category, for narrow plots. Suitable for two-storey surrounding buildings The internal space in this house will meet the housing needs for a 3-4 member family. The living room and kitchen form a single large space. Suitable for flat and slightly sloped terrain. The house has a fireplace which provides heat and serves an irreplaceable aesthetic function. Suitable for row construction thanks to its shape and layout.
| Tech. parameters | |
|---|---|
| Number of persons: | 3-4 |
| Living spaces: | 3 |
| Built-up area: | 46,5m2 |
| Enclosed space: | 382,6m3 |
| Usable (floor) area: | 70,7m2 |
| Living area: | 44,2m2 |
| Ridge height ±0,0: | 6,98m |
| Orientation of the main entrance: | s, sz, sv |
| Ground floor usable (floor) area: | 38,5m2 |
| Second-storey usable (floor) area: | 32,5m2 |
| Roof pitch: | 40 ° |



The project of a small family house ZEN 2 with two floors offers only the built-up area 46.5 m2 to 70.5 m2 of floor area. It will also suit those who are looking for a holiday cottage project. The ZEN 2 house project fits perfectly into the cottage area and will provide you with a pleasant environment for relaxation.
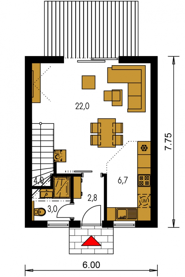
The two-storey house ZEN 2 will provide enough space for living for a family of 3 - 4 members. This house project from PRODOM company thinks about the efficient use of the total floor space while maintaining the airiness of the space. The entrance to the house leads you to the hallway, which can accommodate a shoe cabinet or a smaller built-in wardrobe. There is also an entrance to a separate toilet. A sliding door, which can be installed with a wall opening or a builder's case, takes you through to the living area of the house.
On the ground floor of house ZEN 2, there is a spacious living room connected to the kitchen. The kitchen is designed in an L-shape. In addition to the practical use of space, you will also appreciate its north-facing orientation, especially in the summer months. Between the kitchen and the living area, there is enough space for a dining table for 4 - 6 people.
The living area allows you to choose from a number of furnishing options. An L-shaped sofa for 3 - 4 reindeer or a sofa set consisting of a sofa and armchair can fit comfortably. There is also space for a smaller living wall or a cabinet with a TV and bar. Do you like romantic sitting by the fireplace? The ingenious positioning of the fireplace, which you will have a view of from the sofa and from behind the table, will provide you with it.
The day part of the house is illuminated by a sliding French window, which is oriented towards the garden. From the living room, you can go directly to the terrace of the house overlooking the surrounding greenery.
The floor of the small family house ZEN 2 is the night part of the house. There is a bedroom and a children's room for two children. Both rooms are designed with an emphasis on maximum use of storage space and the possibility of placing a built-in wardrobe. A chest of drawers or a shelving unit can also complement bedroom furnishings.
Plenty of daylight is provided by south-facing windows. In the children's room, this creates an ideal place for desks for doing homework. To give each child their own privacy, two single beds can also fit in here.
In addition to the rooms, the night part of the house consists of a bathroom and a separate toilet, which can also accommodate a bidet. In the bathroom, you can opt for a corner bath or shower. In addition, you can place a cabinet for toiletries and a washing machine here.
The project of a family house without a garage ZEN 2 is designed for living for 3 - 4 people or recreation. It is suitable for flat or gently sloping land. Parking can be arranged next to the house, even with a roof.
This family house project is one of our best-selling and most sought-after from our offer. We believe that its layout solution is what you are looking for and dream of, and you will be next in a long line of satisfied inhabitants of this house.
If you have a narrow plot of land on which you plan to build a family house, then this family house project is a suitable solution for you. This narrow plot project is designed to maximise limited space while maintaining the functionality of the house. It makes efficient use of space on the plot.
This family house belongs to the category of Modern family houses. But it is up to you whether to use modern materials, various types of façade cladding or modern elements in interiors. Ultimately, the owner will be led to a house in the MODERN category with his/her approach to construction and the use of modern technologies, of which there are many at present.
Small family house projects are in the category of inexpensive family houses which are undemanding in terms of plot size – they may be single or multi-storey. These are typically family houses suited to young families who are looking to resolve their housing needs. They are also popular with older people looking for single-storey, barrier-free family houses. These houses are energy efficient.