Pedir un proyecto en formato PDF 399 € Pedir un proyecto en formato PDF y DWG 549 €

Puede disponer de la documentación del proyecto en uno de los cinco idiomas siguientes: EN, DE, FR, ES, IT

Tiempo de entrega :
3 días
Espacios habitables 5
Superficie útil (suelo) 210,9m2
Zona habitable 111,7m2
Número de personas 5-6

COMFORT 124 es una casa de tamaño más grande, para parcelas de anchura media. Adecuada para edificios circundantes de dos plantas. El espacio interno de esta casa satisface las necesidades de una familia de 5-6 miembros. El salón y la cocina forman un gran espacio único. Adecuada para terrenos planos y ligeramente inclinados. La casa cuenta con una chimenea que proporciona calefacción y, además, tiene una función estética irreemplazable. Gracias a la habitación de la planta baja, puedes evitar subir escaleras.

Diseño básico
 
Vista - COMFORT 124
Parámetros técnicos
Número de personas: 5-6
Espacios habitables: 5
Superficie de construcción: 130,2m2
Espacio cerrado: 894m3
Superficie útil (suelo): 210,9m2
Zona habitable: 111,7m2
Altura a cumbrera ±0,0: 8,42m
Orientación de la entrada principal: JV,J,JZ
Superficie útil (suelo) de la planta baja: 110,5m2
Superficie útil (suelo) de la segunda planta: 100,4m2
Inclinación de tejado: 40 °

La casa de campo COMFORT 124 se adaptará a cualquiera que busque una casa de cinco habitaciones al estilo de la arquitectura tradicional. Esta casa con un ático habitable destacará maravillosamente en un pueblo o en las afueras de la ciudad. El diseño de la casa COMFORT 124 también está pensado para satisfacer las exigencias de calidad de vida moderna y ahorro en calefacción. Es una de las casas con demanda energética casi nula .

Preciosa casa de campo con terraza

La casa de campo COMFORT 124 satisfará las necesidades de vivienda de una familia de 5 a 6 miembros. Este proyecto de casa también atraerá a aquellos que buscan una gran casa familiar con chimenea . La solución de distribución piensa en la separación de la parte social de la casa en la planta baja de la parte de noche en el primer piso.

Se ingresa a la casa a través de un pasillo, que puede acomodar un panel colgante, un armario más pequeño y un zapatero. Junto al pasillo, hay un aseo de invitados. A las demás estancias de la casa se accede a través de una puerta, tras la cual se sitúa un vestíbulo con escalera. Debajo de la escalera, hay espacio para sentarse u otros muebles.

Salón con chimenea y cocina

La casa de 5 habitaciones con altillo COMFORT 124 tiene una sala de estar en la parte de día de la casa, que se puede separar de la cocina por una puerta. Al igual que otros proyectos de casas de catálogo de Prodom, este proyecto de casa también cumple con los requisitos para la iluminación interior a través de ventanas .

La cocina en forma de L satisfará la necesidad de espacio para la preparación de alimentos. También puede constar de dos partes, en una de las cuales puede crear áreas para sentarse. Una ventana sobre la unidad de cocina y las puertas que dan a la terraza asegurarán que haya mucha luz natural. Una despensa junto a la cocina le brindará la comodidad de almacenar todos sus suministros.

Los huéspedes pueden disfrutar de una comida en el comedor, que está situado junto a la cocina. Su tamaño le permite elegir una mesa de comedor para 6 - 8 personas. También puedes comprar un aparador para guardar platos y otros utensilios.

En la sala de estar, puede disfrutar de la comodidad del sofá para 6 - 8 personas. Su espacio en el suelo también te permite elegir otros muebles, como una pared de salón, una mesa de centro o un mueble bar. También hay una chimenea de obra. Se accede a la terraza a través de puertas de patio.

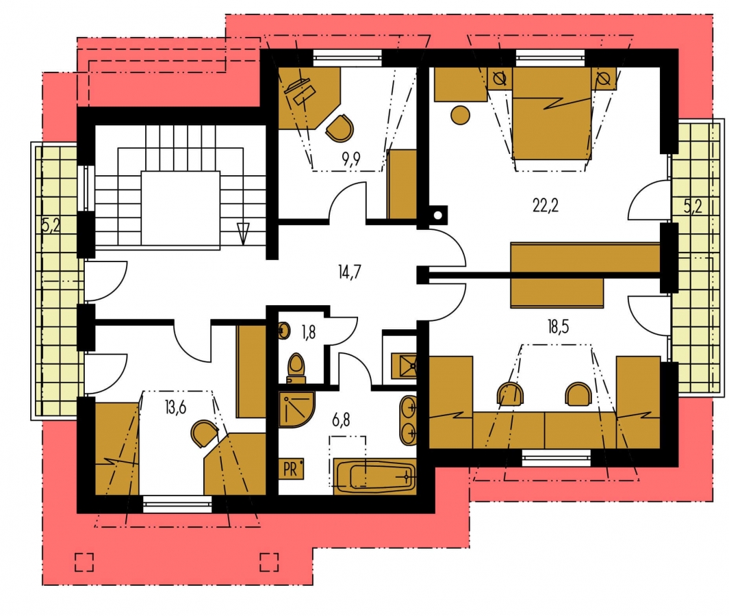
Casa de 5 habitaciones - distribución de la parte nocturna.

La casa de 5 dormitorios con salón loft COMFORT 124 dispone de un dormitorio y habitaciones infantiles situadas en la buhardilla. También hay un baño y un aseo .

Puedes elegir la más grande de las estancias, con una superficie construida de hasta 22,2 m, para amueblar tu dormitorio . 2 Además de la cama de matrimonio y el armario, también podrás elegir otros muebles para el dormitorio. También puedes crear un rincón de trabajo en el dormitorio. La habitación está iluminada por una ventana y una puerta que da al balcón.

Las otras tres habitaciones se pueden utilizar para niños. En el más pequeño de ellos, puedes crear una sala de estudio o una sala de juegos. Los niños mayores apreciarán la sala de estar más pequeña. Una de las habitaciones se puede arreglar para dos niños. Al comprar muebles, puede optar por camas, escritorios con sillas, así como armarios y alacenas. Los niños tendrán espacio para jugar en el medio de la habitación. Dos de las habitaciones tienen acceso al balcón.

Casa de campo COMFORT 124 tiene un baño ubicado en el ático. Está diseñado para satisfacer las diferentes necesidades de cada miembro de la familia. Puede elegir una bañera, una ducha y un lavabo. También puede haber una lavadora. Los muebles de baño servirán para guardar cosas. También hay un baño y una alcoba para calderas en el pasillo de arriba.

Este proyecto de casa también satisfará sus necesidades para almacenar cosas. Puede usar los armarios en las habitaciones, y la despensa y el espacio de almacenamiento adicional son accesibles desde el exterior de la casa. Situado en la planta baja.

Gran casa de campo

La casa de campo COMFORT 124 pertenece a la categoría de gran tamaño. Puedes optar por construir esta casa de cinco habitaciones con buhardilla habitable en una parcela llana o en suave pendiente. Si tiene una parcela lo suficientemente amplia, es posible agregar un garaje en el lado derecho de la casa. La casa puede ser semisótano.


proyectos de casas similares

Casa con buhardilla y garaje.

Casa con buhardilla y garaje.

COMFORT 134 es una casa de tamaño más grande, para parcelas de anchura media. Zona de estar separada de los dormitorios. Adecuada para edificios circundantes de dos plantas. El espacio interno de e...
Casa con buhardilla, gran salón y garaje.

Casa con buhardilla, gran salón y garaje.

COMFORT 149 es una casa de tamaño más grande, para parcelas de anchura media. Zona de estar separada de los dormitorios. Adecuada para edificios circundantes de dos plantas. El espacio interno de e...
Proyecto de casa unifamiliar de varias plantas con tejado plano.

Proyecto de casa unifamiliar de varias plantas con tejado plano.

CUBER es una casa de tamaño mediano, para parcelas de anchura media. Adecuada para edificios circundantes de dos plantas. El espacio interno de esta casa satisface las necesidades de una familia de...
Exclusiva casa moderna con garaje para dos coches y tejado plano.

Exclusiva casa moderna con garaje para dos coches y tejado plano.

CUBER 2 es una casa de tamaño más grande, para parcelas de anchura media. Adecuada para edificios circundantes de dos plantas. El espacio interno de esta casa satisface las necesidades de una famil...
Proyecto de casa unifamiliar moderna de varias plantas con tejado plano.

Proyecto de casa unifamiliar moderna de varias plantas con tejado plano.

CUBER 3 es una casa de tamaño más grande, para parcelas de anchura media. Adecuada para edificios circundantes de dos plantas. El espacio interno de esta casa satisface las necesidades de una famil...
Proyecto de casa unifamiliar moderna con tejado plano, habitación en la planta baja y garaje.

Proyecto de casa unifamiliar moderna con tejado plano, habitación en la planta baja y garaje.

CUBER 4 es una casa de tamaño más grande, para parcelas más anchas. Adecuada para edificios circundantes de dos plantas. El espacio interno de esta casa satisface las necesidades de una familia de ...
Gran casa con tejado plano.

Gran casa con tejado plano.

CUBER 5 es una casa de tamaño más grande, para parcelas más anchas. Zona de estar separada de los dormitorios. Adecuada para edificios circundantes de dos plantas. El espacio interno de esta casa s...
Casa unifamiliar de 4 habitaciones con garaje.

Casa unifamiliar de 4 habitaciones con garaje.

CUBER 6 es una casa de tamaño mediano, para parcelas de anchura media. Adecuada para edificios circundantes de dos plantas. El espacio interno de esta casa satisface las necesidades de una familia ...
Casa de 4 habitaciones con diseño moderno.

Casa de 4 habitaciones con diseño moderno.

CUBER 7 es una casa de tamaño mediano, para parcelas de anchura media. Zona de estar separada de los dormitorios. Adecuada para edificios circundantes de dos plantas. El espacio interno de esta cas...
0

About cookies on this site

We use cookies to collect and analyse information on site performance and usage, to provide social media features and to enhance and customise content and advertisements. Learn more