Pedir un proyecto en formato PDF 399 € Pedir un proyecto en formato PDF y DWG 549 €

Puede disponer de la documentación del proyecto en uno de los cinco idiomas siguientes: EN, DE, FR, ES, IT

Tiempo de entrega :
3 días
Espacios habitables 5
Superficie útil (suelo) 216,3m2
Zona habitable 109,9m2
Número de personas 6-7

HORIZONT 64 es una casa de tamaño más grande, para parcelas más anchas. Zona de estar separada de los dormitorios. Adecuada para edificios circundantes de dos plantas. El espacio interno de esta casa satisface las necesidades de una familia de 6-7 miembros. El salón y la cocina están separados. Adecuada para terrenos planos y ligeramente inclinados. La casa cuenta con una chimenea que proporciona calefacción y, además, tiene una función estética irreemplazable. La casa incluye un garaje espacioso. Gracias a la habitación de la planta baja, puedes evitar subir escaleras. Esta casa unifamiliar cuenta con un sótano.

Diseño básico
 
Vista - HORIZONT 64
Parámetros técnicos
Número de personas: 6-7
Espacios habitables: 5
Superficie de construcción: 150,4m2
Espacio cerrado: 1150m3
Superficie útil (suelo): 216,3m2
Zona habitable: 109,9m2
Altura a cumbrera ±0,0: 7,3m
Orientación de la entrada principal: V,SV,S,SZ
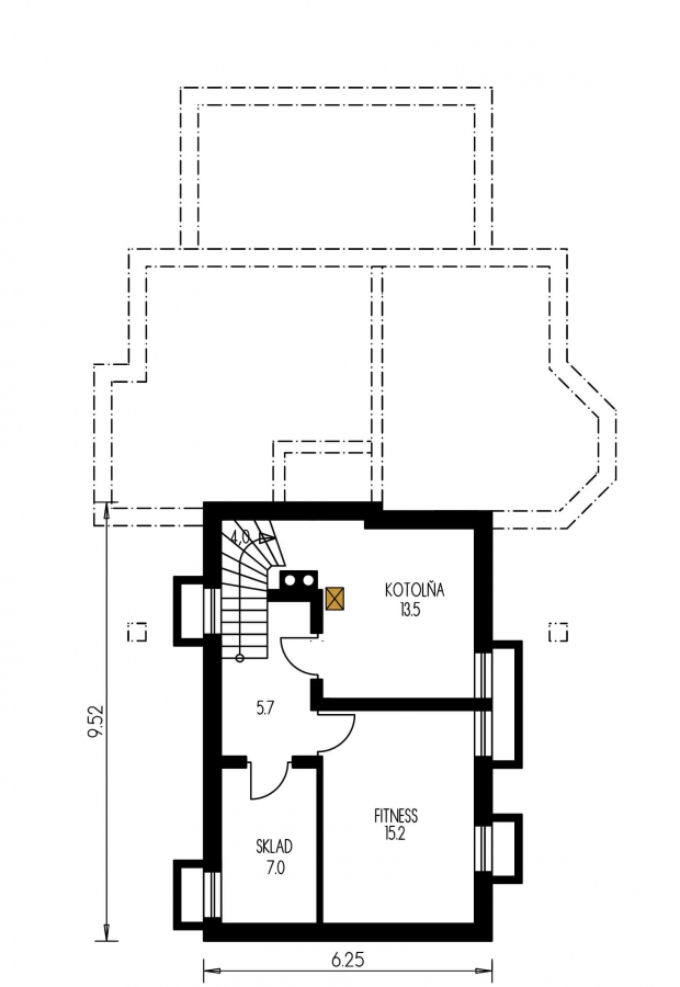
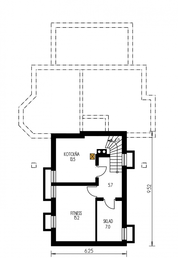
Superficie útil (suelo) del sótano: 45,9m2
Superficie útil (suelo) de la planta baja: 94,3m2
Superficie útil (suelo) de la segunda planta: 76,1m2
Inclinación de tejado: 17 °

proyectos de casas similares

Casa clásica con buhardilla y un ábside (cavidad semicircular).

Casa clásica con buhardilla y un ábside (cavidad semicircular).

IDEAL es una casa de tamaño mediano, para parcelas de anchura media. Adecuada para edificios circundantes de dos plantas. El espacio interno de esta casa satisface las necesidades de una familia de...
Casa con buhardilla ideal para una parcela estrecha.

Casa con buhardilla ideal para una parcela estrecha.

KLASSIK 102 es una casa de tamaño más pequeño, para parcelas estrechas. Zona de estar separada de los dormitorios. Adecuada para edificios circundantes de dos plantas. El espacio interno de esta ca...
Casa unifamiliar popular con garaje.

Casa unifamiliar popular con garaje.

KLASSIK 103 es una casa de tamaño mediano, para parcelas de anchura media. Adecuada para edificios circundantes de dos plantas. El espacio interno de esta casa satisface las necesidades de una fami...
Casa buhardilla adecuada para una parcela pequeña y como casita de campo.

Casa buhardilla adecuada para una parcela pequeña y como casita de campo.

KLASSIK 104 es una casa de tamaño más pequeño, para parcelas de anchura media. Zona de estar separada de los dormitorios. Adecuada para edificios circundantes de dos plantas. El espacio interno de ...
Casa unifamiliar de varias plantas ideal para una parcela estrecha.

Casa unifamiliar de varias plantas ideal para una parcela estrecha.

KLASSIK 106 es una casa de tamaño mediano, para parcelas estrechas. Adecuada para edificios circundantes de dos plantas. El espacio interno de esta casa satisface las necesidades de una familia de ...
Proyecto para una casa con buhardilla y terraza cubierta.

Proyecto para una casa con buhardilla y terraza cubierta.

KLASSIK 108 es una casa de tamaño mediano, para parcelas de anchura media. Zona de estar separada de los dormitorios. Adecuada para edificios circundantes de dos plantas. El espacio interno de esta...
Clásico proyecto de casa con zona de estar luminosa.

Clásico proyecto de casa con zona de estar luminosa.

KLASSIK 111 es una casa de tamaño más pequeño, para parcelas de anchura media. Zona de estar separada de los dormitorios. Adecuada para edificios circundantes de dos plantas. El espacio interno de ...
Proyecto de casa de 5 habitaciones con garaje.

Proyecto de casa de 5 habitaciones con garaje.

KLASSIK 112 es una casa de tamaño más grande, para parcelas de anchura media. Zona de estar separada de los dormitorios. Adecuada para edificios circundantes de dos plantas. El espacio interno de e...
Proyecto de casa con garaje para una parcela estrecha.

Proyecto de casa con garaje para una parcela estrecha.

KLASSIK 113 es una casa de tamaño mediano, para parcelas estrechas. Zona de estar separada de los dormitorios. Adecuada para edificios circundantes de dos plantas. El espacio interno de esta casa s...
0

About cookies on this site

We use cookies to collect and analyse information on site performance and usage, to provide social media features and to enhance and customise content and advertisements. Learn more