Pedir un proyecto en formato PDF 299 € Pedir un proyecto en formato PDF y DWG 449 €

Puede disponer de la documentación del proyecto en uno de los cinco idiomas siguientes: EN, DE, FR, ES, IT

Tiempo de entrega :
3 días
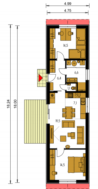
Espacios habitables 3
Superficie útil (suelo) 69,7m2
Zona habitable 48,5m2
Número de personas 3-4

MINI 2 es una casa de tamaño más pequeño, para parcelas estrechas. Adecuada para edificios circundantes de una sola planta. El espacio interno de esta casa satisface las necesidades de una familia de 3-4 miembros. El salón y la cocina forman un gran espacio único. El diseño sin barreras arquitectónicas es adecuado para personas con movilidad reducida. Adecuada para terrenos planos y ligeramente inclinados. La casa cuenta con una chimenea que proporciona calefacción y, además, tiene una función estética irreemplazable. Gracias a la habitación de la planta baja, puedes evitar subir escaleras.

Diseño básico
 
Vista - MINI 2
Parámetros técnicos
Número de personas: 3-4
Espacios habitables: 3
Superficie de construcción: 85,5m2
Espacio cerrado: 470m3
Superficie útil (suelo): 69,7m2
Zona habitable: 48,5m2
Altura a cumbrera ±0,0: 5m
Orientación de la entrada principal: JV, JZ
Superficie útil (suelo) de la planta baja: 69,7m2
Inclinación de tejado: 40 °

proyectos de casas similares

Bonito proyecto de casa unifamiliar adosada.

Bonito proyecto de casa unifamiliar adosada.

NOVA 222 es una casa de tamaño más grande, para parcelas más anchas. Zona de estar separada de los dormitorios. Adecuada para edificios circundantes de dos plantas. El espacio interno de esta casa ...
Villa con garaje para dos coches.

Villa con garaje para dos coches.

NOVA 223 es una casa de tamaño más grande, para parcelas de anchura media. Zona de estar separada de los dormitorios. Adecuada para edificios circundantes de dos plantas. El espacio interno de esta...
Casa de varias plantas con 4 habitaciones.

Casa de varias plantas con 4 habitaciones.

PORTO 20 es una casa de tamaño mediano, para parcelas de anchura media. Adecuada para edificios circundantes de dos plantas. El espacio interno de esta casa satisface las necesidades de una familia...
Casa adecuada para construcción en línea.

Casa adecuada para construcción en línea.

PORTO 21 es una casa de tamaño mediano, para parcelas de anchura media. Zona de estar separada de los dormitorios. Adecuada para edificios circundantes de dos plantas. El espacio interno de esta ca...
Casa moderna también adecuada para construcción en línea.

Casa moderna también adecuada para construcción en línea.

PORTO 22 es una casa de tamaño mediano, para parcelas de anchura media. Adecuada para edificios circundantes de dos plantas. El espacio interno de esta casa satisface las necesidades de una familia...
Clásica casa con tejado de gabletes holandés.

Clásica casa con tejado de gabletes holandés.

PORTO 24 es una casa de tamaño más grande, para parcelas de anchura media. Adecuada para edificios circundantes de dos plantas. El espacio interno de esta casa satisface las necesidades de una fami...
Gran casa en forma de L con varias plantas.

Gran casa en forma de L con varias plantas.

PORTO 29 es una casa de tamaño más grande, para parcelas de anchura media. Zona de estar separada de los dormitorios. Adecuada para edificios circundantes de dos plantas. El espacio interno de esta...
Casa de varias plantas ideal para una parcela estrecha.

Casa de varias plantas ideal para una parcela estrecha.

PREMIER 56 es una casa de tamaño mediano, para parcelas estrechas. Zona de estar separada de los dormitorios. Adecuada para edificios circundantes de dos plantas. El espacio interno de esta casa sa...
Bonita casa para una familia grande.

Bonita casa para una familia grande.

PREMIER 58 es una casa de tamaño más grande, para parcelas de anchura media. Zona de estar separada de los dormitorios. Adecuada para edificios circundantes de dos plantas. El espacio interno de es...
0

About cookies on this site

We use cookies to collect and analyse information on site performance and usage, to provide social media features and to enhance and customise content and advertisements. Learn more