Pedir un proyecto en formato PDF 349 € Pedir un proyecto en formato PDF y DWG 499 €

Puede disponer de la documentación del proyecto en uno de los cinco idiomas siguientes: EN, DE, FR, ES, IT

Tiempo de entrega :
3 días
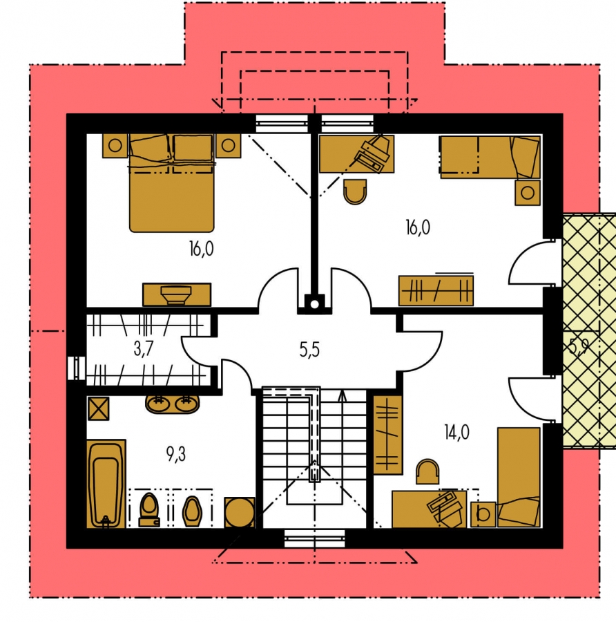
Espacios habitables 5
Superficie útil (suelo) 142,6m2
Zona habitable 86,1m2
Número de personas 5-6

PREMIER 187 es una casa de tamaño mediano, para parcelas de anchura media. Adecuada para edificios circundantes de dos plantas. El espacio interno de esta casa satisface las necesidades de una familia de 5-6 miembros. El salón y la cocina forman un gran espacio único. Adecuada para terrenos planos y ligeramente inclinados. La casa cuenta con una chimenea que proporciona calefacción y, además, tiene una función estética irreemplazable. Gracias a la habitación de la planta baja, puedes evitar subir escaleras.

Diseño básico
 
Vista - PREMIER 187
Parámetros técnicos
Número de personas: 5-6
Espacios habitables: 5
Superficie de construcción: 92,2m2
Espacio cerrado: 593,3m3
Superficie útil (suelo): 142,6m2
Zona habitable: 86,1m2
Altura a cumbrera ±0,0: 7,48m
Orientación de la entrada principal: S,SV,SZ
Superficie útil (suelo) de la planta baja: 72,2m2
Superficie útil (suelo) de la segunda planta: 70,4m2
Inclinación de tejado: 35 °

proyectos de casas similares

Casa en forma de L con varias plantas y tejado a dos aguas.

Casa en forma de L con varias plantas y tejado a dos aguas.

PREMIER 188 es una casa de tamaño más grande, para parcelas de anchura media. Adecuada para edificios circundantes de dos plantas. El espacio interno de esta casa satisface las necesidades de una f...
Casa con salón luminoso y garaje.

Casa con salón luminoso y garaje.

PREMIER 189 es una casa de tamaño mediano, para parcelas de anchura media. Adecuada para edificios circundantes de dos plantas. El espacio interno de esta casa satisface las necesidades de una fami...
Proyecto de casa ideal como casa adosada. Se puede omitir el garaje.

Proyecto de casa ideal como casa adosada. Se puede omitir el garaje.

PREMIER 190 es una casa de tamaño más grande, para parcelas de anchura media. Zona de estar separada de los dormitorios. Adecuada para edificios circundantes de dos plantas. El espacio interno de e...
Interesante casa con garaje y una habitación en la planta baja ideal para una familia grande.

Interesante casa con garaje y una habitación en la planta baja ideal para una familia grande.

PREMIER 191 es una casa de tamaño más grande, para parcelas más anchas. Zona de estar separada de los dormitorios. Adecuada para edificios circundantes de dos plantas. El espacio interno de esta ca...
Proyecto de casa con un tejado a dos aguas.

Proyecto de casa con un tejado a dos aguas.

PREMIER 192 es una casa de tamaño mediano, para parcelas de anchura media. Adecuada para edificios circundantes de dos plantas. El espacio interno de esta casa satisface las necesidades de una fami...
Espaciosa casa con una habitación en la planta baja.

Espaciosa casa con una habitación en la planta baja.

PREMIER 193 es una casa de tamaño más grande, para parcelas de anchura media. Adecuada para edificios circundantes de dos plantas. El espacio interno de esta casa satisface las necesidades de una f...
Casa de varias plantas con chimenea y tejado a dos aguas.

Casa de varias plantas con chimenea y tejado a dos aguas.

PREMIER 194 es una casa de tamaño mediano, para parcelas de anchura media. Adecuada para edificios circundantes de dos plantas. El espacio interno de esta casa satisface las necesidades de una fami...
Proyecto de casa de varias plantas con jardín de invierno y garaje.

Proyecto de casa de varias plantas con jardín de invierno y garaje.

PREMIER 195 es una casa de tamaño mediano, para parcelas de anchura media. Adecuada para edificios circundantes de dos plantas. El espacio interno de esta casa satisface las necesidades de una fami...
Casa con chimenea y una habitación en la planta baja.

Casa con chimenea y una habitación en la planta baja.

PREMIER 196 es una casa de tamaño mediano, para parcelas de anchura media. Zona de estar separada de los dormitorios. Adecuada para edificios circundantes de dos plantas. El espacio interno de esta...
0

About cookies on this site

We use cookies to collect and analyse information on site performance and usage, to provide social media features and to enhance and customise content and advertisements. Learn more