Pedir un proyecto en formato PDF 349 € Pedir un proyecto en formato PDF y DWG 499 €

Puede disponer de la documentación del proyecto en uno de los cinco idiomas siguientes: EN, DE, FR, ES, IT

Tiempo de entrega :
3 días
Espacios habitables 5
Superficie útil (suelo) 131,3m2
Zona habitable 80,6m2
Número de personas 6-7

RAD 1 es una casa de tamaño mediano, para parcelas de anchura media. Adecuada para edificios circundantes de dos plantas. El espacio interno de esta casa satisface las necesidades de una familia de 6-7 miembros. El salón y la cocina forman un gran espacio único. Adecuada para terrenos planos y ligeramente inclinados. La casa cuenta con una chimenea que proporciona calefacción y, además, tiene una función estética irreemplazable. Gracias a la habitación de la planta baja, puedes evitar subir escaleras. Adecuada para construir en línea gracias a su forma y diseño.

Diseño básico
 
Vista - RAD 1
Parámetros técnicos
Número de personas: 6-7
Espacios habitables: 5
Superficie de construcción: 92,8m2
Espacio cerrado: 647,4m3
Superficie útil (suelo): 131,3m2
Zona habitable: 80,6m2
Altura a cumbrera ±0,0: 7,25m
Orientación de la entrada principal: SV, S
Superficie útil (suelo) de la planta baja: 68,6m2
Superficie útil (suelo) de la segunda planta: 62,7m2

RAD 1 es una casa apta para vivienda adosada de dos plantas . Esta casa de cinco habitaciones ofrece un uso eficiente y práctico del espacio con énfasis en la estética de la vida.

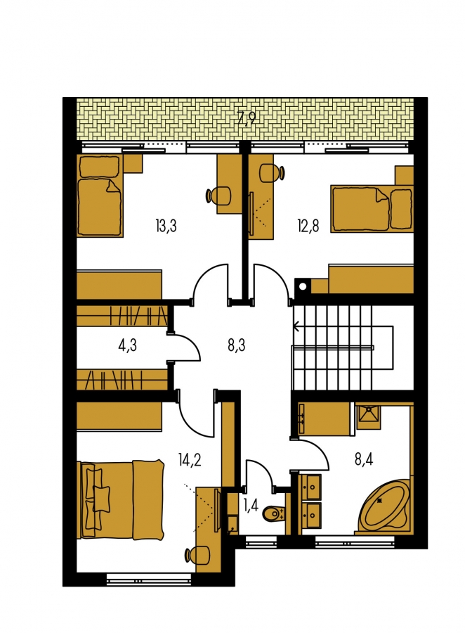
El diseño de la casa

El tamaño del recibidor proporciona un amplio espacio para un armario empotrado o un mueble de recibidor con perchas y zapatero. El recibidor se comunica con el resto de la vivienda mediante una puerta corredera con posibilidad de abrir a pared oa cerramiento de obra. Este proyecto de casa de dos plantas , al igual que otros proyectos de casa de PRODOM, se divide en una parte social y de ocio .

La planta baja es la parte de día de la casa . Nada más entrar, te encontrarás en un generoso salón comunicado con la cocina . Un gran ventanal corredizo proporciona luz al espacio , y las ventanas separadas también tienen una sección dedicada al comedor y la cocina. La cocina está diseñada con un mostrador en forma de L. Incluye una despensa de alimentos donde también se puede colocar un refrigerador. El comedor cumplirá con los requisitos de una familia numerosa: puede acomodar cómodamente una mesa de comedor para 6 u 8 personas.

En el salón se puede colocar un sofá para cuatro personas con posibilidad de añadir taburetes o sillones independientes. La sala de estar conectada a la cocina está dominada por dos lados por una chimenea abierta . En verano, agradecerá el paso directo a la terraza con vistas al jardín .

La planta baja también incluye una habitación más pequeña que puede servir como habitación de invitados, habitación de niños o estudio y un aseo con baño.

La parte nocturna de la casa.

En el primer piso de la casa a la vivienda adosada RAD 1, hay tres dormitorios, un armario, un baño y un aseo. Cada habitación ofrece un amplio espacio para armarios, estanterías u otros muebles. Dos de las habitaciones tienen acceso directo al balcón, que también proporciona mucha luz para hacer los deberes.

La mayor de las estancias está dedicada al dormitorio. Está separado de las habitaciones de los niños por un pasillo para una mayor privacidad. En el dormitorio le agradará la posibilidad de colocar un armario empotrado y un gran sistema de estanterías para libros o cómodas, si es necesario, aquí también puede caber un rincón de trabajo más pequeño.

El diseño del baño también está diseñado teniendo en cuenta el espacio de almacenamiento. Además de una ducha y dos lavabos, puede acomodar un bidé y un mueble para toallas y artículos de tocador.

Proyecto de casa sin garaje de cinco habitaciones.

La casa en una casa adosada sin garaje RAD 1 está diseñada para 6 - 7 personas. Se puede construir en una parcela llana o con poca pendiente . El estacionamiento se puede organizar frente a la entrada con un techo.


El proyecto de casa RAD 1 está clasificado en las categorías siguientes:

Casas para parcelas estrechas

Si dispone de una parcela de terreno estrecha, en la que tiene intención de edificar una casa unifamiliar, este proyecto de casa unifamiliar es la solución adecuada a sus necesidades.  Este proyecto para parcelas estrechas se ha diseñado para maximizar el espacio limitado y, al mismo tiempo, conservar la funcionalidad de la casa. Hace un uso eficiente del espacio de la parcela.

Casas modernas

Esta casa unifamiliar pertenece a la categoría de casas modernas, pero es el comprador quien decide utilizar materiales modernos, varios tipos de revestimiento de pared o elementos modernos en el interior. Finalmente, el propietario será conducido a una casa de la categoría MODERNA con su enfoque de construcción y el uso de tecnologías modernas.

Casas adosadas

Puede crear una casa familiar adosada conectando dos proyectos de casas unifamiliares adecuadas. Una es simétrica a la otra. Las casas pueden ser de una o varias plantas, pero solo pueden estar conectadas mediante las paredes sin ventanas. Cualquier ventana que haya en la pared de conexión debe eliminarse o moverse a otro lado. 

proyectos de casas similares

Interesante casa con buhardilla y garaje.

Interesante casa con buhardilla y garaje.

RIVIERA 195 es una casa de tamaño más grande, para parcelas de anchura media. Zona de estar separada de los dormitorios. Adecuada para edificios circundantes de dos plantas. El espacio interno de e...
Espaciosa casa unifamiliar con sótano grande y un garaje.

Espaciosa casa unifamiliar con sótano grande y un garaje.

RIVIERA 200 es una casa de tamaño más grande, para parcelas de anchura media. Adecuada para edificios circundantes de dos plantas. El espacio interno de esta casa satisface las necesidades de una f...
Proyecto de casa con un dormitorio grande y garaje para dos coches.

Proyecto de casa con un dormitorio grande y garaje para dos coches.

RIVIERA 202 es una casa de tamaño más grande, para parcelas de anchura media. Zona de estar separada de los dormitorios. Adecuada para edificios circundantes de dos plantas. El espacio interno de e...
Moderna casa unifamiliar con garaje y terraza residencial en la planta de arriba.

Moderna casa unifamiliar con garaje y terraza residencial en la planta de arriba.

STYL 2 es una casa de tamaño más grande, para parcelas de anchura media. Adecuada para edificios circundantes de dos plantas. El espacio interno de esta casa satisface las necesidades de una famili...
TANDEM 1

TANDEM 1

TANDEM 1 es una casa de tamaño mediano, para parcelas de anchura media. Adecuada para edificios circundantes de una sola planta. El espacio interno de esta casa satisface las necesidades de una fam...
Clásica casa unifamiliar de varias plantas con galería y una habitación en la planta baja.

Clásica casa unifamiliar de varias plantas con galería y una habitación en la planta baja.

TENUITY 500 es una casa de tamaño mediano, para parcelas de anchura media. Adecuada para edificios circundantes de dos plantas. El espacio interno de esta casa satisface las necesidades de una fami...
Moderna casa unifamiliar de varias plantas con ventanas en las esquinas.

Moderna casa unifamiliar de varias plantas con ventanas en las esquinas.

TENUITY 501 es una casa de tamaño mediano, para parcelas de anchura media. Adecuada para edificios circundantes de dos plantas. El espacio interno de esta casa satisface las necesidades de una fami...
Moderna casa unifamiliar con garaje y terraza residencial en la planta de arriba.

Moderna casa unifamiliar con garaje y terraza residencial en la planta de arriba.

TENUITY 502 es una casa de tamaño más grande, para parcelas de anchura media. Adecuada para edificios circundantes de dos plantas. El espacio interno de esta casa satisface las necesidades de una f...
Casa con garaje para dos coches para una parcela ancha.

Casa con garaje para dos coches para una parcela ancha.

TENUITY 503 es una casa de tamaño más grande, para parcelas más anchas. Adecuada para edificios circundantes de dos plantas. El espacio interno de esta casa satisface las necesidades de una familia...
0

About cookies on this site

We use cookies to collect and analyse information on site performance and usage, to provide social media features and to enhance and customise content and advertisements. Learn more