Commander un projet en format PDF 299 € Commander un projet en formats PDF et DWG 449 €

Vous pouvez obtenir la documentation de projet en l'une des cinq langues suivantes : EN, DE, FR, ES, IT

Délai de livraison :
3 jours
Espaces de vie 3
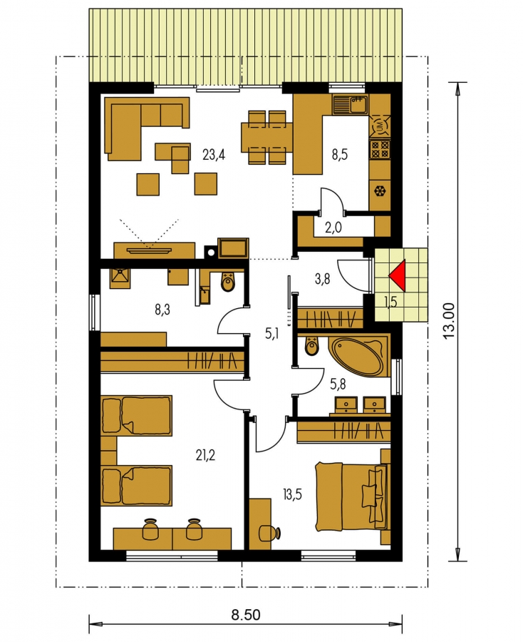
Surface (au sol) utile 84,5m2
Surface de vie 41m2
Nombre de personnes 3-4

BUNGALOW 227 fait partie de la catégorie des petites maisons, pour terrains à largeur moyenne. Adapté aux bâtiments environnants à un étage. L'espace intérieur de cette maison satisfera les besoins de logement d'une famille de 3-4 personnes. Le salon et la cuisine forment un seul grand espace. La conception sans barrières est adaptée aux personnes à mobilité réduite. Adapté aux terrains plats et légèrement inclinés. La maison dispose d'une cheminée qui produit de la chaleur et qui joue un rôle esthétique irremplaçable. Vous pouvez éviter de monter les escaliers grâce à la chambre au rez-de-chaussée.

Conception de base
 
Vue - BUNGALOW 227
Paramètres techniques
Nombre de personnes: 3-4
Espaces de vie: 3
Zone bâtie: 109m2
Espace fermé: 686,2m3
Surface (au sol) utile: 84,5m2
Surface de vie: 41m2
Hauteur de faîtage ±0,0: 5,3m
Orientation de l'entrée principale: S, SZ
Surface (au sol) utile au rez-de-chaussée: 84,5m2
Pente du toit: 23 °

Le projet de maison BUNGALOW 227 est classé dans les catégories suivantes :

Maisons pour terrains étroits

Si vous disposez d'un terrain étroit sur lequel vous souhaitez construire une maison de famille, alors ce projet de maison de famille vous offre une solution pratique.  Ce projet de terrain étroit est conçu pour maximiser l'espace disponible tout en conservant la fonctionnalité de la maison. Il utilise l'espace de terrain disponible de façon efficace.

Bungalow

Les projets de maison de famille de type bungalow sont parmi nos modèles les plus vendus. L'avantage de ces maisons provient principalement du fait que vous disposez de tout sur un seul étage. Elles s'adaptent donc aux familles avec enfants en bas âge, ainsi qu'aux personnes âgées ou nécessitant un projet de maison sans barrières. Vous trouverez certainement un projet à vos goûts dans notre offre si vous disposez déjà d'un petit ou d’un grand terrain constructible. 

Projets de petites maisons

Les projets de petites maisons de famille sont classés dans la catégorie des maisons de famille abordables et non exigeantes en termes de taille de terrain – elles peuvent être à un seul ou à plusieurs étages. Ces maisons sont généralement faites pour de jeunes familles souhaitant trouver une solution à leurs besoins de logement. Elles sont également prisées par des personnes plus âgées cherchant des maisons de famille à un étage et sans barrières. Ces maisons sont efficaces du point de vue énergétique. 

projets de maison similaires

BUNGALOW 228

BUNGALOW 228

BUNGALOW 228 fait partie de la catégorie des petites maisons, pour terrains à largeur moyenne. Adapté aux bâtiments environnants à un étage. L'espace intérieur de cette maison satisfera les besoins...
BUNGALOW 229

BUNGALOW 229

BUNGALOW 229 fait partie de la catégorie des petites maisons, pour terrains étroits. Adapté aux bâtiments environnants à un étage. L'espace intérieur de cette maison satisfera les besoins de logeme...
BUNGALOW 230

BUNGALOW 230

BUNGALOW 230 fait partie de la catégorie des maisons de taille moyenne, pour terrains à largeur moyenne. Adapté aux bâtiments environnants à un étage. L'espace intérieur de cette maison satisfera l...
Maison avec grenier habitable et cave.

Maison avec grenier habitable et cave.

COMFORT 107 fait partie de la catégorie des maisons de taille moyenne, pour terrains à largeur moyenne. Adapté aux bâtiments environnants à deux étages. L'espace intérieur de cette maison satisfera...
Maison avec jardin d'hiver.

Maison avec jardin d'hiver.

COMFORT 109 fait partie de la catégorie des grandes maisons, pour terrains à largeur moyenne. Adapté aux bâtiments environnants à deux étages. L'espace intérieur de cette maison satisfera les besoi...
Maison de famille à style rustique.

Maison de famille à style rustique.

COMFORT 124 fait partie de la catégorie des grandes maisons, pour terrains à largeur moyenne. Adapté aux bâtiments environnants à deux étages. L'espace intérieur de cette maison satisfera les besoi...
Maison avec grenier habitable et un garage.

Maison avec grenier habitable et un garage.

COMFORT 134 fait partie de la catégorie des grandes maisons, pour terrains à largeur moyenne. Espace de vie séparé des chambres. Adapté aux bâtiments environnants à deux étages. L'espace intérieur ...
Maison grenier avec grand salon et un garage.

Maison grenier avec grand salon et un garage.

COMFORT 149 fait partie de la catégorie des grandes maisons, pour terrains à largeur moyenne. Espace de vie séparé des chambres. Adapté aux bâtiments environnants à deux étages. L'espace intérieur ...
Projet de maison de famille à plusieurs étages avec toit plat.

Projet de maison de famille à plusieurs étages avec toit plat.

CUBER fait partie de la catégorie des maisons de taille moyenne, pour terrains à largeur moyenne. Adapté aux bâtiments environnants à deux étages. L'espace intérieur de cette maison satisfera les b...
0

About cookies on this site

We use cookies to collect and analyse information on site performance and usage, to provide social media features and to enhance and customise content and advertisements. Learn more