Commander un projet en format PDF 399 € Commander un projet en formats PDF et DWG 549 €

Vous pouvez obtenir la documentation de projet en l'une des cinq langues suivantes : EN, DE, FR, ES, IT

Délai de livraison :
3 jours
Espaces de vie 5
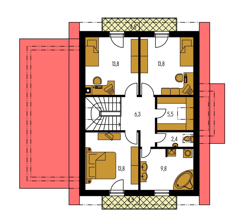
Surface (au sol) utile 178,8m2
Surface de vie 82,2m2
Nombre de personnes 6

KLASSIK 149 fait partie de la catégorie des grandes maisons, pour terrains à largeur moyenne. Adapté aux bâtiments environnants à deux étages. L'espace intérieur de cette maison satisfera les besoins de logement d'une famille de 6 personnes. Le salon et la cuisine forment un seul grand espace. Adapté aux terrains plats et légèrement inclinés. La maison dispose d'une cheminée qui produit de la chaleur et qui joue un rôle esthétique irremplaçable. La maison comprend un grand garage.

Conception de base
 
Vue - KLASSIK 149
Paramètres techniques
Nombre de personnes: 6
Espaces de vie: 5
Zone bâtie: 122,5m2
Espace fermé: 692,7m3
Surface (au sol) utile: 178,8m2
Surface de vie: 82,2m2
Hauteur de faîtage ±0,0: 6,84m
Orientation de l'entrée principale: S, SZ, Z
Surface (au sol) utile au rez-de-chaussée: 104,4m2
Surface (au sol) utile au premier étage: 74,4m2
Pente du toit: 25 °

Le projet de maison KLASSIK 149 est classé dans les catégories suivantes :

Maisons jumelées

Vous pouvez créer une maison de famille jumelée en reliant deux projets de maisons de famille adaptés. L'un d'entre eux sera l'image miroir de l'autre. Les maisons peuvent se construire sur un ou sur plusieurs étages, mais elles ne peuvent être connectées l'une à l'autre que via les murs sans fenêtres. Toute fenêtre au mur pourra être éliminée ou déplacée vers un autre côté. 

projets de maison similaires

Maison grenier avec chambre au rez-de-chaussée et garage attenant.

Maison grenier avec chambre au rez-de-chaussée et garage attenant.

KLASSIK 150 fait partie de la catégorie des grandes maisons, pour terrains à largeur moyenne. Espace de vie séparé des chambres. Adapté aux bâtiments environnants à deux étages. L'espace intérieur ...
Maison avec garage et grenier habitable.

Maison avec garage et grenier habitable.

KLASSIK 152 fait partie de la catégorie des grandes maisons, pour terrains à largeur moyenne. Espace de vie séparé des chambres. Adapté aux bâtiments environnants à deux étages. L'espace intérieur ...
Maison avec toit à pignon, garage et cabinet au rez-de-chaussée.

Maison avec toit à pignon, garage et cabinet au rez-de-chaussée.

KLASSIK 153 fait partie de la catégorie des grandes maisons, pour terrains à largeur moyenne. Espace de vie séparé des chambres. Adapté aux bâtiments environnants à deux étages. L'espace intérieur ...
Grande maison grenier de famille exclusive avec chambres au rez-de-chaussée.

Grande maison grenier de famille exclusive avec chambres au rez-de-chaussée.

KLASSIK 154 fait partie de la catégorie des grandes maisons, pour terrains à largeur moyenne. Espace de vie séparé des chambres. Adapté aux bâtiments environnants à deux étages. L'espace intérieur ...
Maison de famille adaptée à la construction mitoyenne ou en tant que maison jumelée.

Maison de famille adaptée à la construction mitoyenne ou en tant que maison jumelée.

KLASSIK 156 fait partie de la catégorie des maisons de taille moyenne, pour terrains à largeur moyenne. Espace de vie séparé des chambres. Adapté aux bâtiments environnants à deux étages. L'espace ...
Maison de famille grenier avec garage.

Maison de famille grenier avec garage.

KLASSIK 157 fait partie de la catégorie des maisons de taille moyenne, pour terrains à largeur moyenne. Espace de vie séparé des chambres. Adapté aux bâtiments environnants à deux étages. L'espace ...
Maison de famille adaptée aux terrains étroits.

Maison de famille adaptée aux terrains étroits.

KLASSIK 158 fait partie de la catégorie des maisons de taille moyenne, pour terrains à largeur moyenne. Adapté aux bâtiments environnants à deux étages. L'espace intérieur de cette maison satisfera...
Maison avec garage et chambre au rez-de-chaussée. Adaptable en tant que maison jumelée.

Maison avec garage et chambre au rez-de-chaussée. Adaptable en tant que maison jumelée.

KLASSIK 159 fait partie de la catégorie des grandes maisons, pour terrains à largeur moyenne. Espace de vie séparé des chambres. Adapté aux bâtiments environnants à deux étages. L'espace intérieur ...
Maison grenier classique avec toit à pignon.

Maison grenier classique avec toit à pignon.

KLASSIK 160 fait partie de la catégorie des grandes maisons, pour terrains à largeur moyenne. Espace de vie séparé des chambres. Adapté aux bâtiments environnants à deux étages. L'espace intérieur ...
0

About cookies on this site

We use cookies to collect and analyse information on site performance and usage, to provide social media features and to enhance and customise content and advertisements. Learn more