Commander un projet en format PDF 299 € Commander un projet en formats PDF et DWG 449 €

Vous pouvez obtenir la documentation de projet en l'une des cinq langues suivantes : EN, DE, FR, ES, IT

Délai de livraison :
3 jours
Espaces de vie 3
Surface (au sol) utile 69,7m2
Surface de vie 48,5m2
Nombre de personnes 3-4

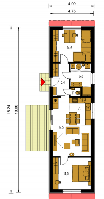
MINI 2 fait partie de la catégorie des petites maisons, pour terrains étroits. Adapté aux bâtiments environnants à un étage. L'espace intérieur de cette maison satisfera les besoins de logement d'une famille de 3-4 personnes. Le salon et la cuisine forment un seul grand espace. La conception sans barrières est adaptée aux personnes à mobilité réduite. Adapté aux terrains plats et légèrement inclinés. La maison dispose d'une cheminée qui produit de la chaleur et qui joue un rôle esthétique irremplaçable. Vous pouvez éviter de monter les escaliers grâce à la chambre au rez-de-chaussée.

Conception de base
 
Vue - MINI 2
Paramètres techniques
Nombre de personnes: 3-4
Espaces de vie: 3
Zone bâtie: 85,5m2
Espace fermé: 470m3
Surface (au sol) utile: 69,7m2
Surface de vie: 48,5m2
Hauteur de faîtage ±0,0: 5m
Orientation de l'entrée principale: JV, JZ
Surface (au sol) utile au rez-de-chaussée: 69,7m2
Pente du toit: 40 °

projets de maison similaires

Magnifique projet de maison jumelée.

Magnifique projet de maison jumelée.

NOVA 222 fait partie de la catégorie des grandes maisons, pour terrains plus larges. Espace de vie séparé des chambres. Adapté aux bâtiments environnants à deux étages. L'espace intérieur de cette ...
Villa avec garage double.

Villa avec garage double.

NOVA 223 fait partie de la catégorie des grandes maisons, pour terrains à largeur moyenne. Espace de vie séparé des chambres. Adapté aux bâtiments environnants à deux étages. L'espace intérieur de ...
Maison à 4-pièces à plusieurs étages.

Maison à 4-pièces à plusieurs étages.

PORTO 20 fait partie de la catégorie des maisons de taille moyenne, pour terrains à largeur moyenne. Adapté aux bâtiments environnants à deux étages. L'espace intérieur de cette maison satisfera le...
Maison adaptée à la construction mitoyenne.

Maison adaptée à la construction mitoyenne.

PORTO 21 fait partie de la catégorie des maisons de taille moyenne, pour terrains à largeur moyenne. Espace de vie séparé des chambres. Adapté aux bâtiments environnants à deux étages. L'espace int...
Maison moderne également adaptée à la construction mitoyenne.

Maison moderne également adaptée à la construction mitoyenne.

PORTO 22 fait partie de la catégorie des maisons de taille moyenne, pour terrains à largeur moyenne. Adapté aux bâtiments environnants à deux étages. L'espace intérieur de cette maison satisfera le...
Maison classique avec toit à demi-pans.

Maison classique avec toit à demi-pans.

PORTO 24 fait partie de la catégorie des grandes maisons, pour terrains à largeur moyenne. Adapté aux bâtiments environnants à deux étages. L'espace intérieur de cette maison satisfera les besoins ...
Grande maison en forme de L et à plusieurs étages.

Grande maison en forme de L et à plusieurs étages.

PORTO 29 fait partie de la catégorie des grandes maisons, pour terrains à largeur moyenne. Espace de vie séparé des chambres. Adapté aux bâtiments environnants à deux étages. L'espace intérieur de ...
Maison à plusieurs étages pour terrain étroit.

Maison à plusieurs étages pour terrain étroit.

PREMIER 56 fait partie de la catégorie des maisons de taille moyenne, pour terrains étroits. Espace de vie séparé des chambres. Adapté aux bâtiments environnants à deux étages. L'espace intérieur d...
Magnifique maison pour grandes familles.

Magnifique maison pour grandes familles.

PREMIER 58 fait partie de la catégorie des grandes maisons, pour terrains à largeur moyenne. Espace de vie séparé des chambres. Adapté aux bâtiments environnants à deux étages. L'espace intérieur d...
0

About cookies on this site

We use cookies to collect and analyse information on site performance and usage, to provide social media features and to enhance and customise content and advertisements. Learn more