You can have project documentation in one of five languages: EN, DE, FR, ES, IT
| Living spaces | 4 |
| Usable (floor) area | 120,1m2 |
| Living area | 73,1m2 |
| Number of persons | 4 |
BUNGALOW 168 is a house in the medium size category, for narrow plots. Suitable for single-storey surrounding buildings. The internal space in this house will meet the housing needs for a 4 member family. The living room and kitchen form a single large space. The barrier-free design is appropriate for persons with reduced mobility. Suitable for flat and slightly sloped terrain. The house has a fireplace which provides heat and serves an irreplaceable aesthetic function. Thanks to the room on the ground floor, you can avoid the need to take the stairs.
| Tech. parameters | |
|---|---|
| Number of persons: | 4 |
| Living spaces: | 4 |
| Built-up area: | 140m2 |
| Enclosed space: | 624m3 |
| Usable (floor) area: | 120,1m2 |
| Living area: | 73,1m2 |
| Ridge height ±0,0: | 4,99m |
| Orientation of the main entrance: | J, JV, V, SV |
| Ground floor usable (floor) area: | 120,1m2 |
| Roof pitch: | 25 ° |
Modern architecture, four rooms, glass wall in the living room and kitchen. These are the strengths that attract the project of the house on a narrow plot Bungalow 168. This 4-room house with a fireplace will suit anyone looking for a layout that will bring plenty of space. The catalogue house Bungalow 168 also places emphasis on saving energy for heating.
The catalogue house Bungalow 168 fulfils the requirements for housing for four people. The layout of the bungalow divides this house on a narrow plot into a day and night zone. The positioning of the individual rooms will thus bring enough privacy for each member of the household.
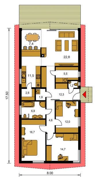
The front door of the house leads you into the entrance hall. Its floor space allows you to remove the hanging wall. You can also choose a smaller hallway with a wardrobe and a shoe cupboard. From the hallway, you will pass into the hallway. This leads you to the different parts of the house.
A house project on a narrow plot, Bungalow 168 appeals with lots of daylight. The day part of the house is dominated by a view of the garden through a glass wall with French windows. This house with a fireplace thinks, like other family homes from Prodom, about having enough space for daily gatherings with the family.
The kitchen appeals with a practical solution that provides a spacious work surface for food preparation. At the same time, it gives you extra seating at the bar counter. The kitchen is hidden behind a partition, which multiplies the feeling of privacy when relaxing in the living area. A window above the kitchen unit provides daylight. A dining table for up to 6 - 8 people can be situated near the kitchen.
The four-bedroom house with fireplace Bungalow 168 presents an environment in which you can create comfort for gatherings with your loved ones. The built-in fireplace in the living room will take care of a pleasant atmosphere. For this part of the room, you can choose a sofa set with armchairs for six people and a living wall. The terrace of the house is accessed via sliding doors.
The catalogue house Bungalow 168 has a spacious bedroom, in the night part of the house, there are two children's bedrooms, a bathroom and a toilet.
The design of the bedroom provides for the placement of a double bed, to which you can buy bedside tables, a chest of drawers and a large bookcase. In the bedroom, a wardrobe is also ready to take its place. Two windows provide light for the room.
Children's rooms wish to choose furniture so that children have everything they need for play, sleep and everyday duties. The larger of rooms can be arranged for two children if necessary without giving the impression of a cramped space. You can buy beds, wardrobes and lockers for children to store toys and school supplies. By the windows, there is an ideal place to situate desks.
The house project on a narrow plot Bungalow 168 has a bathroom designed to install a bath and shower. The bathroom also has a double sink, and the toilet is partially hidden behind a half-bar. The second toilet is off the hallway.
This four-bedroom house with a fireplace has a utility room in the hallway for the boiler. There is also space in the hallway to situate a built-in wardrobe. A separate room will provide additional storage space. It can accommodate a washer and dryer, closets and shelves for storing things.
The house project on a narrow plot Bungalow 168 will fulfil the housing needs of a family of 4. This four-bedroom house with a fireplace is one of the medium size house. The catalogue house Bungalow 168 is suitable for realization on a flat or gently sloping plot. A parking space can be created next to the house.
This family house project is one of our best-selling and most sought-after from our offer. We believe that its layout solution is what you are looking for and dream of, and you will be next in a long line of satisfied inhabitants of this house.
If you have a narrow plot of land on which you plan to build a family house, then this family house project is a suitable solution for you. This narrow plot project is designed to maximise limited space while maintaining the functionality of the house. It makes efficient use of space on the plot.
Bungalow type family house projects are among our best-sellers. The advantages of these houses are mainly that you usually have everything on one floor, so it is suitable for families with small children, for the elderly or people who need a barrier-free house project. If you already have a larger or smaller plot of land, you will definitely find a project for you in our offer.
This family house belongs to the category of Modern family houses. But it is up to you whether to use modern materials, various types of façade cladding or modern elements in interiors. Ultimately, the owner will be led to a house in the MODERN category with his/her approach to construction and the use of modern technologies, of which there are many at present.
Small family house projects are in the category of inexpensive family houses which are undemanding in terms of plot size – they may be single or multi-storey. These are typically family houses suited to young families who are looking to resolve their housing needs. They are also popular with older people looking for single-storey, barrier-free family houses. These houses are energy efficient.