Order a project in PDF format 349 € Order a project in PDF and DWG format 499 €

You can have project documentation in one of five languages: EN, DE, FR, ES, IT

Delivery time :
3 days
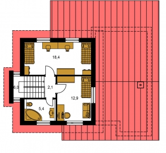
Living spaces 4
Usable (floor) area 124,8m2
Living area 80,6m2
Number of persons 5

TREND 290 is a house in the medium size category, for medium width plots. Suitable for two-storey surrounding buildings The internal space in this house will meet the housing needs for a 5 member family. The living room and kitchen form a single large space. Suitable for flat and slightly sloped terrain. The house has a fireplace which provides heat and serves an irreplaceable aesthetic function. Thanks to the room on the ground floor, you can avoid the need to take the stairs.

Basic design
 
View - TREND 290
Tech. parameters
Number of persons: 5
Living spaces: 4
Built-up area: 134,5m2
Enclosed space: 658,6m3
Usable (floor) area: 124,8m2
Living area: 80,6m2
Ridge height ±0,0: 6,395m
Orientation of the main entrance: S,SZ
Ground floor usable (floor) area: 86m2
Second-storey usable (floor) area: 38,8m2
Roof pitch: 15 °

The TREND 290 house project is classified in the following categories:

Modern houses

This family house belongs to the category of Modern family houses. But it is up to you whether to use modern materials, various types of façade cladding or modern elements in interiors. Ultimately, the owner will be led to a house in the MODERN category with his/her approach to construction and the use of modern technologies, of which there are many at present.

similar house projects

Modern house project with a garage and habitable attic space.

Modern house project with a garage and habitable attic space.

TREND 291 is a house in the medium size category, for medium width plots. Suitable for two-storey surrounding buildings The internal space in this house will meet the housing needs for a 5 member f...
Modern house with a garage and shed roofs.

Modern house with a garage and shed roofs.

TREND 292 is a house in the medium size category, for medium width plots. Suitable for two-storey surrounding buildings The internal space in this house will meet the housing needs for a 5 member f...
Modern family house with two rooms upstairs.

Modern family house with two rooms upstairs.

TREND 293 is a house in the medium size category, for medium width plots. Living area separate from bedrooms. Suitable for two-storey surrounding buildings The internal space in this house will mee...
Modern family house with a ground floor living room and kitchen area.

Modern family house with a ground floor living room and kitchen area.

TREND 294 is a house in the smaller size category, for medium width plots. Living area separate from bedrooms. Suitable for two-storey surrounding buildings The internal space in this house will me...
Modern multi-storey house with a flat and gable roof.

Modern multi-storey house with a flat and gable roof.

TREND 295 is a house in the medium size category, for medium width plots. Suitable for two-storey surrounding buildings The internal space in this house will meet the housing needs for a 5 member f...
Spacious family house with a garage and a terrace

Spacious family house with a garage and a terrace

TREND 296 is a house in the larger size category, for medium width plots. Living area separate from bedrooms. Suitable for two-storey surrounding buildings The internal space in this house will mee...
Inexpensive multi-storey house for a narrow plot, also suitable as a garden cottage.

Inexpensive multi-storey house for a narrow plot, also suitable as a garden cottage.

VIKTORIA is a house in the smaller size category, for narrow plots. Suitable for two-storey surrounding buildings The internal space in this house will meet the housing needs for a 5 member family....
Small family house suitable for use as a holiday cottage.

Small family house suitable for use as a holiday cottage.

ZEN 1 is a house in the smaller size category, for narrow plots. Suitable for two-storey surrounding buildings The internal space in this house will meet the housing needs for a 5 member family. Th...
Small multi-storey family house project suitable for recreational usage.

Small multi-storey family house project suitable for recreational usage.

ZEN 2 is a house in the smaller size category, for narrow plots. Suitable for two-storey surrounding buildings The internal space in this house will meet the housing needs for a 5 member family. Th...
0

About cookies on this site

We use cookies to collect and analyse information on site performance and usage, to provide social media features and to enhance and customise content and advertisements. Learn more