Pedir un proyecto en formato PDF 399 € Pedir un proyecto en formato PDF y DWG 549 €

Puede disponer de la documentación del proyecto en uno de los cinco idiomas siguientes: EN, DE, FR, ES, IT

Tiempo de entrega :
3 días
Espacios habitables 5
Superficie útil (suelo) 303m2
Zona habitable 95m2
Número de personas 5-6

BUNGALOW 100 es una casa de tamaño más grande, para parcelas más anchas. Zona de estar separada de los dormitorios. Adecuada para edificios circundantes de una sola planta. El espacio interno de esta casa satisface las necesidades de una familia de 5-6 miembros. El salón y la cocina están separados. Adecuada para terrenos planos y ligeramente inclinados. La casa cuenta con una chimenea que proporciona calefacción y, además, tiene una función estética irreemplazable. La casa incluye un garaje espacioso. Gracias a la habitación de la planta baja, puedes evitar subir escaleras. Esta casa unifamiliar cuenta con un sótano.

Diseño básico
 
Vista - BUNGALOW 100
Parámetros técnicos
Número de personas: 5-6
Espacios habitables: 5
Superficie de construcción: 222,8m2
Espacio cerrado: 1500m3
Superficie útil (suelo): 303m2
Zona habitable: 95m2
Altura a cumbrera ±0,0: 6,33m
Orientación de la entrada principal: SZ,S,SV
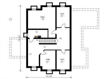
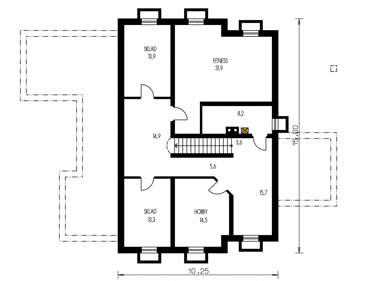
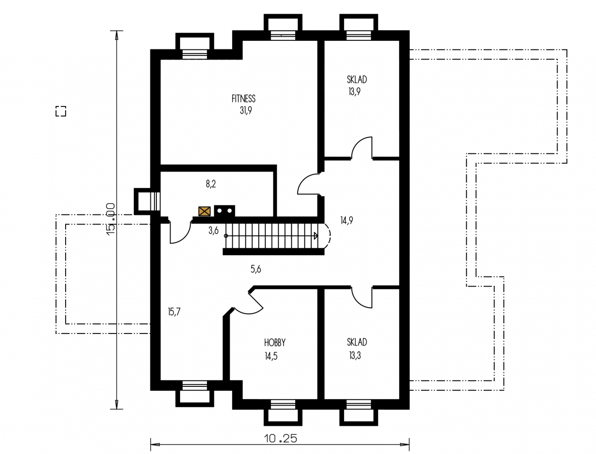
Superficie útil (suelo) del sótano: 124,4m2
Superficie útil (suelo) de la planta baja: 178,6m2
Inclinación de tejado: 25 °

¿Estás buscando un proyecto de casa con bodega ? ¿Y le gustaría que también tuviera garaje para un coche ? En ese caso, el bungalow Bungalow 100 de 5 habitaciones le conviene. Esta gran casa con sótano y garaje satisfará las necesidades de vivienda de 5 a 6 personas. Un salón con chimenea y una terraza cubierta completan el confort.

Bungalow de 5 habitaciones (no solo) para una gran familia

El bungalow Bungalow 100 de cinco habitaciones se adaptará a una familia que espera mucho espacio de su sala de estar. Además de la planta baja de la casa, también puede utilizar el sótano. En los meses más cálidos, se amplía el espacio habitable terraza cubierta .

Al entrar en la casa, se encontrará en el vestíbulo de entrada, que se puede amueblar con perchas y un zapatero. Luego, a través de la puerta, llegarás al resto de la casa. La distribución del bungalow está convenientemente dividida en partes de día y de noche. Este diseño promueve la vida familiar. Cada ocupante de la casa también tiene sus necesidades de privacidad satisfechas.

Salón con chimenea y terraza cubierta en la parte de día de la casa

El salón con chimenea y la terraza cubierta crean un ambiente ideal para compartir momentos. Ya sea que elija pasarlos con su familia o si le gusta invitar visitas, también disfrutará del espacio de la sala de estar. Su mobiliario puede proporcionar muchos asientos, y puede agregar otros muebles. En esta sala también se encuentra una mesa de comedor para seis personas. La habitación está iluminada por una ventana y ventanas francesas , a través de las cuales se pasa a la terraza.

La cocina está separada de la sala y el comedor por un medio tabique. La cocina en forma de L ofrece mucho espacio para la preparación de alimentos. ¿Te gustaría tener también una despensa en casa ? Esto se encuentra en el pasillo cerca de la cocina.

Cuatro habitaciones: privacidad para todos los miembros de la familia

Las habitaciones de la parte de noche de la casa se pueden acondicionar de acuerdo a las necesidades de cada residente. El espacio de piso de las habitaciones le permite elegir los muebles de su elección.

En el dormitorio, puede haber una cama doble con mesitas de noche. También puedes elegir armarios o armarios empotrados. Además de estas piezas, en el dormitorio también caben muebles adicionales como una cómoda, un sillón de lectura o una librería.

Las habitaciones infantiles satisfarán las necesidades de los niños para las actividades cotidianas. Puedes crear para ellos un espacio multifuncional en el que les encantará jugar y descansar. La iluminación de las habitaciones con ventanas ayuda a crear un ambiente adecuado para la preparación para la escuela.

El baño de la casa familiar Bungalow 100 está diseñado para la instalación de una bañera, una ducha, dos lavabos y un inodoro. Una lavadora también se puede acomodar aquí. Hay un segundo aseo en la parte de noche de la casa.

Garaje para un coche

Vivienda unifamiliar con garaje Bungalow 100 ofrece parking para un vehículo. El garaje se encuentra en la planta baja. Cuando sales del coche, no tienes que caminar por el exterior. Llegarás directamente al pasillo de la casa.

Casa grande con bodega - sótano espacioso

La casa con sótano Bungalow 100 ofrece un amplio trastero así como la posibilidad de crear un hogar fitness. En el sótano de la casa se puede arreglar un salón y casa taller. También hay un lavadero.

Proyecto de una casa con bodega y garaje.

El proyecto de casa con bodega y garaje Bungalow 100 puede ser realizado en terreno llano o de suave pendiente. Este bungalow de 5 habitaciones se verá mejor en una gran parcela edificable en un desarrollo circundante bajo.


El proyecto de casa BUNGALOW 100 está clasificado en las categorías siguientes:

Bungalow

Los proyectos de casas unifamiliares tipo bungalow son las preferidas de nuestros clientes. Las ventajas de estas viviendas son principalmente que todo está en una planta, así que es adecuada para familias con niños pequeños, para personas mayores o para personas que necesitan un proyecto sin barreras arquitectónicas. Si ya tiene una parcela, en nuestro catálogo, encontrará un proyecto adecuado para ella. 

proyectos de casas similares

Casa con ventanas en la esquina y una terraza cubierta.

Casa con ventanas en la esquina y una terraza cubierta.

BUNGALOW 101 es una casa de tamaño mediano, para parcelas de anchura media. Zona de estar separada de los dormitorios. Adecuada para edificios circundantes de una sola planta. El espacio interno de...
Casa de obra con entrada lateral y tejados a dos aguas.

Casa de obra con entrada lateral y tejados a dos aguas.

BUNGALOW 102 es una casa de tamaño más pequeño, para parcelas de anchura media. Zona de estar separada de los dormitorios. Adecuada para edificios circundantes de una sola planta. El espacio intern...
Casa unifamiliar con una buhardilla y garaje.

Casa unifamiliar con una buhardilla y garaje.

BUNGALOW 103 es una casa de tamaño más grande, para parcelas de anchura media. Adecuada para edificios circundantes de dos plantas. El espacio interno de esta casa satisface las necesidades de una ...
Casa unifamiliar de una sola planta con 3 habitaciones, chimenea en la esquina y un garaje.

Casa unifamiliar de una sola planta con 3 habitaciones, chimenea en la esquina y un garaje.

BUNGALOW 104 es una casa de tamaño mediano, para parcelas de anchura media. Adecuada para edificios circundantes de una sola planta. El espacio interno de esta casa satisface las necesidades de una...
Encantadora casa con garaje para dos coches. Entrada al dormitorio desde la terraza cubierta.

Encantadora casa con garaje para dos coches. Entrada al dormitorio desde la terraza cubierta.

BUNGALOW 105 es una casa de tamaño mediano, para parcelas de anchura media. Adecuada para edificios circundantes de una sola planta. El espacio interno de esta casa satisface las necesidades de una...
Casa en forma de L con garaje y zona de estar y dormitorios independientes.

Casa en forma de L con garaje y zona de estar y dormitorios independientes.

BUNGALOW 106 es una casa de tamaño más grande, para parcelas más anchas. Adecuada para edificios circundantes de una sola planta. El espacio interno de esta casa satisface las necesidades de una fa...
Proyecto de casa en forma de L orientada a la calle. Gran casa unifamiliar de 6 habitaciones con garaje.

Proyecto de casa en forma de L orientada a la calle. Gran casa unifamiliar de 6 habitaciones con garaje.

BUNGALOW 107 es una casa de tamaño mediano, para parcelas más anchas. Adecuada para edificios circundantes de una sola planta. El espacio interno de esta casa satisface las necesidades de una famil...
Casa unifamiliar estrecha y moderna para familias primerizas.

Casa unifamiliar estrecha y moderna para familias primerizas.

BUNGALOW 108 es una casa de tamaño más pequeño, para parcelas estrechas. Adecuada para edificios circundantes de una sola planta. El espacio interno de esta casa satisface las necesidades de una fa...
Bungalow en forma de U con garaje para dos coches y terraza exterior.

Bungalow en forma de U con garaje para dos coches y terraza exterior.

BUNGALOW 109 es una casa de tamaño mediano, para parcelas más anchas. Adecuada para edificios circundantes de una sola planta. El espacio interno de esta casa satisface las necesidades de una famil...
0

About cookies on this site

We use cookies to collect and analyse information on site performance and usage, to provide social media features and to enhance and customise content and advertisements. Learn more