Commander un projet en format PDF 299 € Commander un projet en formats PDF et DWG 449 €

Vous pouvez obtenir la documentation de projet en l'une des cinq langues suivantes : EN, DE, FR, ES, IT

Délai de livraison :
3 jours
Espaces de vie 2
Surface (au sol) utile 48,6m2
Surface de vie 30,4m2
Nombre de personnes 2-3

BUNGALOW 219 fait partie de la catégorie des petites maisons, pour terrains étroits. Adapté aux bâtiments environnants à un étage. L'espace intérieur de cette maison satisfera les besoins de logement d'une famille de 2-3 personnes. Le salon et la cuisine forment un seul grand espace. La conception sans barrières est adaptée aux personnes à mobilité réduite. Adapté aux terrains plats et légèrement inclinés. La maison dispose d'une cheminée qui produit de la chaleur et qui joue un rôle esthétique irremplaçable. Vous pouvez éviter de monter les escaliers grâce à la chambre au rez-de-chaussée. Adaptée à la construction mitoyenne grâce à sa forme et à sa disposition.

Conception de base
 
Vue - BUNGALOW 219
Paramètres techniques
Nombre de personnes: 2-3
Espaces de vie: 2
Zone bâtie: 60m2
Espace fermé: 292,4m3
Surface (au sol) utile: 48,6m2
Surface de vie: 30,4m2
Hauteur de faîtage ±0,0: 5,27m
Orientation de l'entrée principale: S, SZ, SV
Surface (au sol) utile au rez-de-chaussée: 48,6m2
Pente du toit: 25 °

Maison de deux chambres sur un petit terrain Le bungalow 219 avec cheminée convient également comme maison de vacances ou abri de jardin. Ce projet de maison sans garage répondra aux exigences d'une famille de 2 à 3 personnes. La maison est accessible aux fauteuils roulants, ce qui sera apprécié des familles avec de jeunes enfants et des personnes à mobilité réduite.

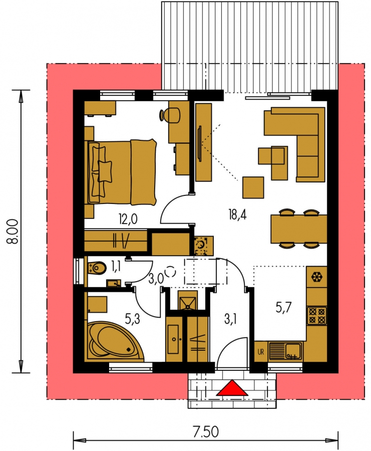
L'agencement de la maison

La disposition de la maison satisfait à la fois aux exigences d'espace et d'utilisation maximale de la zone bâtie. L'entrée de la maison vous amène dans le couloir. Sa taille vous permet de placer une armoire intégrée ou un ensemble de couloir avec des cintres. Elle est séparée du reste de la maison par une porte, dont le rôle est d'empêcher la pénétration de l'air froid des environs.

Le couloir mène directement au salon de la maison, qui se compose d'une cuisine reliée au salon . Comme les autres projets de maison PRODOM, le projet Bungalow 219 pense à l'éclairage de l'espace. Ceci est pris en charge par des portes coulissantes sur la terrasse et une fenêtre dans le coin cuisine.

Le coin cuisine est conçu pour une ligne en forme de L, qui, même dans un petit espace, satisfera les attentes de chaque femme au foyer. Tous les appareils modernes, y compris le réfrigérateur, peuvent s'intégrer, laissant beaucoup d'espace pour la préparation des aliments. L'espace est alloué pour une table à manger entre l'unité et le salon. Il peut accueillir une table à manger pour quatre personnes.

Un canapé en L pour trois personnes trouve sa place dans le salon, auquel on peut ajouter un pouf ou un tabouret. Tout en gardant la pièce aérée, il peut également y avoir un meuble TV ou des étagères. Par temps froid, vous pourrez profiter d'un coin salon confortable avec la chaleur de la cheminée intégrée .

Solution de chambre pratique

Depuis le salon, il y a une porte menant à la chambre. Dans cette pièce, il y a de la place pour une armoire intégrée. En plus du lit double, il peut également accueillir d'autres meubles, comme une commode. Besoin d'un endroit tranquille pour travailler? Le suréclairage de la pièce avec jusqu'à deux fenêtres crée les conditions idéales pour un petit espace de travail. Les passionnés de lecture aimeront sûrement en faire un coin lecture.

Salle de bain avec espace de rangement

La conception de la maison sur un petit terrain Bungalow 219 situe la salle de bain à proximité d'une toilette séparée avec un lavabo plus petit. Une baignoire d'angle peut être installée dans la salle de bain, et une machine à laver peut également s'y installer. L'espace réservé au lavabo peut être utilisé pour un meuble lavabo.

Un espace de rangement supplémentaire pour un placard pour les articles de toilette et les produits de nettoyage, les textiles de salle de bain et d'autres articles est créé dans le couloir. De plus, vous trouverez ici un emplacement pour le montage de la chaudière.

Bungalow au rez-de-chaussée sans garage

Le projet d'un bungalow sans garage satisfera les exigences d'une famille de 2 à 3 personnes. Pour le stationnement, il y a un espace réservé à côté de la maison. Une place de parking peut être construite avec un toit. Cette petite maison familiale peut être réalisée sur un terrain plat ou légèrement en pente et comme gîte.


Le projet de maison BUNGALOW 219 est classé dans les catégories suivantes :

Maisons pour terrains étroits

Si vous disposez d'un terrain étroit sur lequel vous souhaitez construire une maison de famille, alors ce projet de maison de famille vous offre une solution pratique.  Ce projet de terrain étroit est conçu pour maximiser l'espace disponible tout en conservant la fonctionnalité de la maison. Il utilise l'espace de terrain disponible de façon efficace.

Bungalow

Les projets de maison de famille de type bungalow sont parmi nos modèles les plus vendus. L'avantage de ces maisons provient principalement du fait que vous disposez de tout sur un seul étage. Elles s'adaptent donc aux familles avec enfants en bas âge, ainsi qu'aux personnes âgées ou nécessitant un projet de maison sans barrières. Vous trouverez certainement un projet à vos goûts dans notre offre si vous disposez déjà d'un petit ou d’un grand terrain constructible. 

Maisons modernes

Cette maison de famille appartient à la catégorie de maisons de famille modernes. Mais il vous appartient de décider d'utiliser des matériaux modernes, différents types de revêtements de façade ou d'éléments de décor intérieur. En fin de compte, le propriétaire sera orienté vers une maison de la catégorie MODERNE modifiée par son approche personnalisée de construction ainsi que son utilisation de technologies modernes largement disponibles actuellement.

Projets de petites maisons

Les projets de petites maisons de famille sont classés dans la catégorie des maisons de famille abordables et non exigeantes en termes de taille de terrain – elles peuvent être à un seul ou à plusieurs étages. Ces maisons sont généralement faites pour de jeunes familles souhaitant trouver une solution à leurs besoins de logement. Elles sont également prisées par des personnes plus âgées cherchant des maisons de famille à un étage et sans barrières. Ces maisons sont efficaces du point de vue énergétique. 

projets de maison similaires

Maison de famille abordable pour famille de 2 personnes.

Maison de famille abordable pour famille de 2 personnes.

BUNGALOW 220 fait partie de la catégorie des petites maisons, pour terrains étroits. Adapté aux bâtiments environnants à un étage. L'espace intérieur de cette maison satisfera les besoins de logeme...
Bungalow en forme de L à 4 pièces avec cheminée imposante.

Bungalow en forme de L à 4 pièces avec cheminée imposante.

BUNGALOW 221 fait partie de la catégorie des maisons de taille moyenne, pour terrains à largeur moyenne. Adapté aux bâtiments environnants à un étage. L'espace intérieur de cette maison satisfera l...
Maison de famille à un étage en forme de L avec garage.

Maison de famille à un étage en forme de L avec garage.

BUNGALOW 222 fait partie de la catégorie des maisons de taille moyenne, pour terrains plus larges. Adapté aux bâtiments environnants à un étage. L'espace intérieur de cette maison satisfera les bes...
maison familiale supérieure au rez-de-chaussée avec garage double et terrasse couverte spacieuse

maison familiale supérieure au rez-de-chaussée avec garage double et terrasse couverte spacieuse

BUNGALOW 225 fait partie de la catégorie des grandes maisons, pour terrains plus larges. Adapté aux bâtiments environnants à un étage. L'espace intérieur de cette maison satisfera les besoins de lo...
BUNGALOW 226

BUNGALOW 226

BUNGALOW 226 fait partie de la catégorie des petites maisons, pour terrains étroits. Adapté aux bâtiments environnants à un étage. L'espace intérieur de cette maison satisfera les besoins de logeme...
BUNGALOW 227

BUNGALOW 227

BUNGALOW 227 fait partie de la catégorie des petites maisons, pour terrains à largeur moyenne. Adapté aux bâtiments environnants à un étage. L'espace intérieur de cette maison satisfera les besoins...
BUNGALOW 228

BUNGALOW 228

BUNGALOW 228 fait partie de la catégorie des petites maisons, pour terrains à largeur moyenne. Adapté aux bâtiments environnants à un étage. L'espace intérieur de cette maison satisfera les besoins...
BUNGALOW 229

BUNGALOW 229

BUNGALOW 229 fait partie de la catégorie des petites maisons, pour terrains étroits. Adapté aux bâtiments environnants à un étage. L'espace intérieur de cette maison satisfera les besoins de logeme...
BUNGALOW 230

BUNGALOW 230

BUNGALOW 230 fait partie de la catégorie des maisons de taille moyenne, pour terrains à largeur moyenne. Adapté aux bâtiments environnants à un étage. L'espace intérieur de cette maison satisfera l...
0

About cookies on this site

We use cookies to collect and analyse information on site performance and usage, to provide social media features and to enhance and customise content and advertisements. Learn more