Commander un projet en format PDF 399 € Commander un projet en formats PDF et DWG 549 €

Vous pouvez obtenir la documentation de projet en l'une des cinq langues suivantes : EN, DE, FR, ES, IT

Délai de livraison :
3 jours
Espaces de vie 5
Surface (au sol) utile 179,9m2
Surface de vie 105,5m2
Nombre de personnes 6-7

KLASSIK 144 fait partie de la catégorie des grandes maisons, pour terrains à largeur moyenne. Espace de vie séparé des chambres. Adapté aux bâtiments environnants à deux étages. L'espace intérieur de cette maison satisfera les besoins de logement d'une famille de 6-7 personnes. Le salon et la cuisine sont séparés. Adapté aux terrains plats et légèrement inclinés. La maison dispose d'une cheminée qui produit de la chaleur et qui joue un rôle esthétique irremplaçable. La maison comprend un grand garage. Vous pouvez éviter de monter les escaliers grâce à la chambre au rez-de-chaussée.

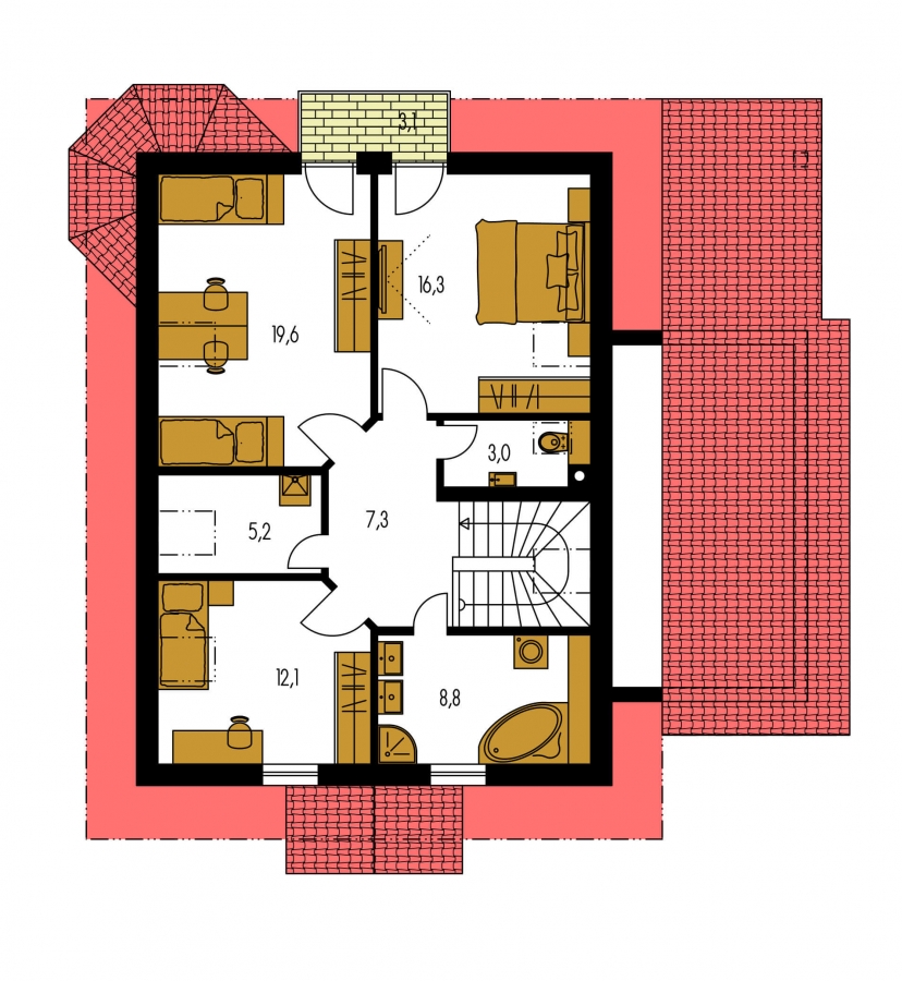
Conception de base
 
Vue - KLASSIK 144
Paramètres techniques
Nombre de personnes: 6-7
Espaces de vie: 5
Zone bâtie: 132,9m2
Espace fermé: 787,5m3
Surface (au sol) utile: 179,9m2
Surface de vie: 105,5m2
Hauteur de faîtage ±0,0: 7,21m
Orientation de l'entrée principale: S,SZ,SV,V,Z
Surface (au sol) utile au rez-de-chaussée: 108,2m2
Surface (au sol) utile au premier étage: 71,7m2
Pente du toit: 30 °

Le projet de maison KLASSIK 144 est classé dans les catégories suivantes :

Projets les plus vendus

Le projet de maison de famille est l'une de nos offres les mieux vendues et les plus recherchées. Nous sommes convaincus que son agencement et sa conception répondront parfaitement à vos critères et que vous ferez partie d'une longue ligne d'habitants satisfaits de cette maison.

projets de maison similaires

Maison avec garage double, grande cave, chambre au rez-de-chaussée et jardin d'hiver.

Maison avec garage double, grande cave, chambre au rez-de-chaussée et jardin d'hiver.

KLASSIK 145 fait partie de la catégorie des grandes maisons, pour terrains à largeur moyenne. Espace de vie séparé des chambres. Adapté aux bâtiments environnants à deux étages. L'espace intérieur ...
Maison de famille classique avec chambre au rez-de-chaussée.

Maison de famille classique avec chambre au rez-de-chaussée.

KLASSIK 147 fait partie de la catégorie des grandes maisons, pour terrains à largeur moyenne. Espace de vie séparé des chambres. Adapté aux bâtiments environnants à deux étages. L'espace intérieur ...
Maison grenier classique avec chambre au rez-de-chaussée et garage.

Maison grenier classique avec chambre au rez-de-chaussée et garage.

KLASSIK 148 fait partie de la catégorie des grandes maisons, pour terrains à largeur moyenne. Espace de vie séparé des chambres. Adapté aux bâtiments environnants à deux étages. L'espace intérieur ...
Maison de famille à plusieurs étages avec toit à pignon et garage.

Maison de famille à plusieurs étages avec toit à pignon et garage.

KLASSIK 149 fait partie de la catégorie des grandes maisons, pour terrains à largeur moyenne. Adapté aux bâtiments environnants à deux étages. L'espace intérieur de cette maison satisfera les besoi...
Maison grenier avec chambre au rez-de-chaussée et garage attenant.

Maison grenier avec chambre au rez-de-chaussée et garage attenant.

KLASSIK 150 fait partie de la catégorie des grandes maisons, pour terrains à largeur moyenne. Espace de vie séparé des chambres. Adapté aux bâtiments environnants à deux étages. L'espace intérieur ...
Maison avec garage et grenier habitable.

Maison avec garage et grenier habitable.

KLASSIK 152 fait partie de la catégorie des grandes maisons, pour terrains à largeur moyenne. Espace de vie séparé des chambres. Adapté aux bâtiments environnants à deux étages. L'espace intérieur ...
Maison avec toit à pignon, garage et cabinet au rez-de-chaussée.

Maison avec toit à pignon, garage et cabinet au rez-de-chaussée.

KLASSIK 153 fait partie de la catégorie des grandes maisons, pour terrains à largeur moyenne. Espace de vie séparé des chambres. Adapté aux bâtiments environnants à deux étages. L'espace intérieur ...
Grande maison grenier de famille exclusive avec chambres au rez-de-chaussée.

Grande maison grenier de famille exclusive avec chambres au rez-de-chaussée.

KLASSIK 154 fait partie de la catégorie des grandes maisons, pour terrains à largeur moyenne. Espace de vie séparé des chambres. Adapté aux bâtiments environnants à deux étages. L'espace intérieur ...
Maison de famille adaptée à la construction mitoyenne ou en tant que maison jumelée.

Maison de famille adaptée à la construction mitoyenne ou en tant que maison jumelée.

KLASSIK 156 fait partie de la catégorie des maisons de taille moyenne, pour terrains à largeur moyenne. Espace de vie séparé des chambres. Adapté aux bâtiments environnants à deux étages. L'espace ...
0

About cookies on this site

We use cookies to collect and analyse information on site performance and usage, to provide social media features and to enhance and customise content and advertisements. Learn more