Ordina un progetto in formato PDF 299 € Ordina un progetto in formato PDF e DWG 449 €

La documentazione di progetto può essere realizzata in una delle cinque lingue di seguito indicate: inglese, tedesco, francese, spagnolo, italiano

Tempi di consegna :
3 giorni
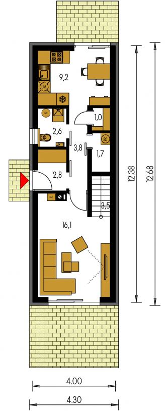
Spazi abitabili 3
Area utilizzabile (pavimento) 77,5m2
Zona giorno 40,9m2
Numero di persone 3-4

ZEN 4 è una casa nella categoria dimensioni piccole, per appezzamenti stretti. Zona giorno separata dalle stanze da letto. Soluzione adatta a edifici circostanti a due piani Lo spazio interno di questa casa soddisferà le esigenze abitative di una famiglia di 3-4 persone. Il soggiorno e la cucina sono separati. Adatto a terreni pianeggianti e leggermente inclinati. La casa ha un camino che fornisce calore e ha una funzione estetica insostituibile.

Progetto di base
 
Vedi - ZEN 4
Parametri tecnici
Numero di persone: 3-4
Spazi abitabili: 3
Area edificata: 49,5m2
Spazio chiuso: 322m3
Area utilizzabile (pavimento): 77,5m2
Zona giorno: 40,9m2
Altezza della cresta ±0,0: 6,62m
Orientamento dell'ingresso principale: J, JZ, JV
Area utilizzabile (pavimento) del piano terra: 41,1m2
Area utilizzabile (pavimento) del secondo piano: 36,4m2
Passo del tetto: 11.5 °

Il progetto della casa ZEN 4 è inserito nelle seguenti categorie:

Case per terreni stretti

Se hai un appezzamento di terreno stretto su cui costruire una casa familiare, allora questo progetto di casa familiare è una soluzione che fa al caso tuo.  Questo progetto per terreni stretti è stato concepito per ottimizzare i limiti di spazio mantenendo al tempo stesso la funzionalità della casa: riesce infatti a sfruttare in modo efficiente lo spazio del terreno.

Case moderne

Questa familiare appartiene alla categoria delle case familiari moderne. Sta tuttavia a te decidere se usare materiali moderni, vari tipi di rivestimenti di facciata o elementi moderni negli interni. In definitiva, il proprietario verrà condotto a una casa nella categoria MODERNA con il suo approccio alla costruzione e l'uso di tecnologie moderne, come molte di quelle che si vedono attualmente in giro.

Progetti di case piccole dimensioni

I progetti di case familiari piccole rientrano nella categoria delle case familiari poco costose che sono poco esigenti in termini di dimensioni dell’appezzamento di terreno - possono essere a uno o più piani. Si tratta solitamente di case familiari adatte a giovani famiglie alla ricerca di una soluzione per le loro necessità abitative. Sono inoltre molto apprezzate da persone anziane che richiedono case familiari a un solo piano e senza barriere. Queste case sono efficienti dal punto di vista energetico. 

progetti di case simili

ZEN 5

ZEN 5

ZEN 5 è una casa nella categoria dimensioni piccole, per appezzamenti stretti. Soluzione adatta a edifici circostanti a due piani Lo spazio interno di questa casa soddisferà le esigenze abitative d...
ZEN 3

ZEN 3

ZEN 3 è una casa nella categoria dimensioni piccole, per appezzamenti stretti. Soluzione adatta a edifici circostanti a due piani Lo spazio interno di questa casa soddisferà le esigenze abitative d...
Piccolo progetto di casa familiare a più piani adatta a uso ricreativo.

Piccolo progetto di casa familiare a più piani adatta a uso ricreativo.

ZEN 2 è una casa nella categoria dimensioni piccole, per appezzamenti stretti. Soluzione adatta a edifici circostanti a due piani Lo spazio interno di questa casa soddisferà le esigenze abitative d...
Piccola casa familiare adatta come cottage per le vacanze.

Piccola casa familiare adatta come cottage per le vacanze.

ZEN 1 è una casa nella categoria dimensioni piccole, per appezzamenti stretti. Soluzione adatta a edifici circostanti a due piani Lo spazio interno di questa casa soddisferà le esigenze abitative d...
Casa a più piani economica per un terreno stretto, adatta anche come cottage con giardino.

Casa a più piani economica per un terreno stretto, adatta anche come cottage con giardino.

VIKTORIA è una casa nella categoria dimensioni piccole, per appezzamenti stretti. Soluzione adatta a edifici circostanti a due piani Lo spazio interno di questa casa soddisferà le esigenze abitativ...
Spaziosa casa familiare con garage e terrazza

Spaziosa casa familiare con garage e terrazza

TREND 296 è una casa nella categoria dimensioni grandi, per appezzamenti di media larghezza. Zona giorno separata dalle stanze da letto. Soluzione adatta a edifici circostanti a due piani Lo spazio...
Moderna casa a più piani con tetto piano e tetto a capanna.

Moderna casa a più piani con tetto piano e tetto a capanna.

TREND 295 è una casa nella categoria dimensioni medie, per appezzamenti di media larghezza. Soluzione adatta a edifici circostanti a due piani Lo spazio interno di questa casa soddisferà le esigenz...
Moderna casa familiare con soggiorno e cucina al piano terra.

Moderna casa familiare con soggiorno e cucina al piano terra.

TREND 294 è una casa nella categoria dimensioni piccole, per appezzamenti di media larghezza. Zona giorno separata dalle stanze da letto. Soluzione adatta a edifici circostanti a due piani Lo spazi...
Moderna casa familiare con due stanze al piano superiore.

Moderna casa familiare con due stanze al piano superiore.

TREND 293 è una casa nella categoria dimensioni medie, per appezzamenti di media larghezza. Zona giorno separata dalle stanze da letto. Soluzione adatta a edifici circostanti a due piani Lo spazio ...
0

About cookies on this site

We use cookies to collect and analyse information on site performance and usage, to provide social media features and to enhance and customise content and advertisements. Learn more