Order a project in PDF format 349 € Order a project in PDF and DWG format 499 €

You can have project documentation in one of five languages: EN, DE, FR, ES, IT

Delivery time :
3 days
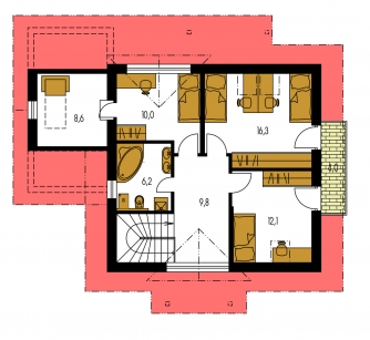
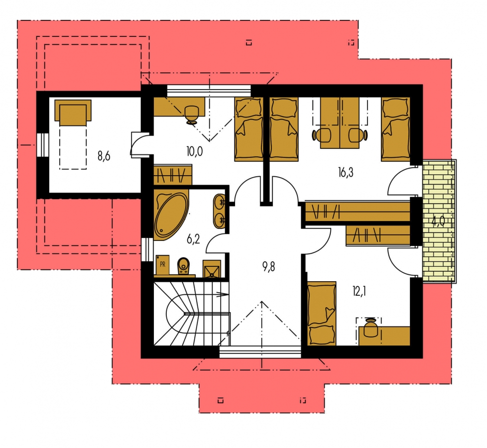
Living spaces 5
Usable (floor) area 145m2
Living area 83,2m2
Number of persons 5-6

KLASSIK 142 is a house in the medium size category, for medium width plots. Suitable for two-storey surrounding buildings The internal space in this house will meet the housing needs for a 5-6 member family. The living room and kitchen form a single large space. Suitable for flat and slightly sloped terrain. The house includes a spacious garage. Thanks to the room on the ground floor, you can avoid the need to take the stairs. Suitable for row construction thanks to its shape and layout.

Basic design
 
View - KLASSIK 142
Tech. parameters
Number of persons: 5-6
Living spaces: 5
Built-up area: 114,3m2
Enclosed space: 602,5m3
Usable (floor) area: 145m2
Living area: 83,2m2
Ridge height ±0,0: 7,5m
Orientation of the main entrance: SV,S,SZ
Ground floor usable (floor) area: 82m2
Second-storey usable (floor) area: 63m2
Roof pitch: 38 °

similar house projects

House with a garage for a narrow plot.

House with a garage for a narrow plot.

KLASSIK 143 is a house in the larger size category, for medium width plots. Living area separate from bedrooms. Suitable for two-storey surrounding buildings The internal space in this house will m...
Attic house with an apse and a garage.

Attic house with an apse and a garage.

KLASSIK 144 is a house in the larger size category, for medium width plots. Living area separate from bedrooms. Suitable for two-storey surrounding buildings The internal space in this house will m...
House with double garage, large basement, ground floor room and winter garden.

House with double garage, large basement, ground floor room and winter garden.

KLASSIK 145 is a house in the larger size category, for medium width plots. Living area separate from bedrooms. Suitable for two-storey surrounding buildings The internal space in this house will m...
Classic family house with a room on the ground floor.

Classic family house with a room on the ground floor.

KLASSIK 147 is a house in the larger size category, for medium width plots. Living area separate from bedrooms. Suitable for two-storey surrounding buildings The internal space in this house will m...
Classic attic house with a room on the ground floor and a garage.

Classic attic house with a room on the ground floor and a garage.

KLASSIK 148 is a house in the larger size category, for medium width plots. Living area separate from bedrooms. Suitable for two-storey surrounding buildings The internal space in this house will m...
Multi-story family house with a gable roof and a garage.

Multi-story family house with a gable roof and a garage.

KLASSIK 149 is a house in the larger size category, for medium width plots. Suitable for two-storey surrounding buildings The internal space in this house will meet the housing needs for a 5-6 memb...
Attic house with a room on the ground floor and attached garage.

Attic house with a room on the ground floor and attached garage.

KLASSIK 150 is a house in the larger size category, for medium width plots. Living area separate from bedrooms. Suitable for two-storey surrounding buildings The internal space in this house will m...
House with a garage and habitable attic space.

House with a garage and habitable attic space.

KLASSIK 152 is a house in the larger size category, for medium width plots. Living area separate from bedrooms. Suitable for two-storey surrounding buildings The internal space in this house will m...
House with a gable roof, garage and ground floor study.

House with a gable roof, garage and ground floor study.

KLASSIK 153 is a house in the larger size category, for medium width plots. Living area separate from bedrooms. Suitable for two-storey surrounding buildings The internal space in this house will m...
0

About cookies on this site

We use cookies to collect and analyse information on site performance and usage, to provide social media features and to enhance and customise content and advertisements. Learn more