You can have project documentation in one of five languages: EN, DE, FR, ES, IT
| Living spaces | 4 |
| Usable (floor) area | 134,9m2 |
| Living area | 81,2m2 |
| Number of persons | 4 |
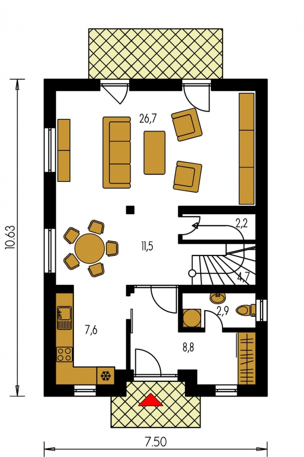
KOMPAKT 37 is a house in the medium size category, for narrow plots. Suitable for two-storey surrounding buildings The internal space in this house will meet the housing needs for a 4 member family. The living room and kitchen form a single large space. Suitable for flat and slightly sloped terrain.
| Tech. parameters | |
|---|---|
| Number of persons: | 4 |
| Living spaces: | 4 |
| Built-up area: | 78,7m2 |
| Enclosed space: | 531,9m3 |
| Usable (floor) area: | 134,9m2 |
| Living area: | 81,2m2 |
| Ridge height ±0,0: | 7,62m |
| Orientation of the main entrance: | V,SV,S |
| Ground floor usable (floor) area: | 64,4m2 |
| Second-storey usable (floor) area: | 70,5m2 |
| Roof pitch: | 40 ° |
This family house project is one of our best-selling and most sought-after from our offer. We believe that its layout solution is what you are looking for and dream of, and you will be next in a long line of satisfied inhabitants of this house.
If you have a narrow plot of land on which you plan to build a family house, then this family house project is a suitable solution for you. This narrow plot project is designed to maximise limited space while maintaining the functionality of the house. It makes efficient use of space on the plot.
Small family house projects are in the category of inexpensive family houses which are undemanding in terms of plot size – they may be single or multi-storey. These are typically family houses suited to young families who are looking to resolve their housing needs. They are also popular with older people looking for single-storey, barrier-free family houses. These houses are energy efficient.